装修|134平现代简约风三居室,大理石的悬空电视柜装饰画很有特色
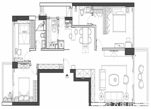
这是一套134平米的现代简约风格装修案例,整体空间以极简舒适的空间基础,搭配上马卡龙色调的软装与配色,营造出一种浪漫温馨的情趣空间感,令人温情而自然,客厅整体无主灯的空间基础,装上嵌入式筒灯,电视墙在硬包背景的基础,装上大理石质感的悬空电视柜,灰色的沙发墙挂上一幅放飞气球的装饰画。
有些人装修的时候会考虑客厅装修风水,如果一进门发现横梁压顶那确实一个不好的设计,在风水学来讲,客厅的横梁会给人产生一种心理压抑感。建议在装修的时候可以使用天花板或者悬挂饰品加以化解,如果面积够大,也可以以横梁为界设计成两个客厅。
灰色的沙发墙挂上一幅放飞气球的装饰画,布置布置沙发,还有儒雅的地毯,蓝色的单人沙发椅,也让空间显得格外的自然舒适。
客厅整体无主灯的空间基础,装上嵌入式筒灯,电视墙上方一排的灯槽,做上灯带后,让空间照明均匀舒适而又时尚层次。
黑色的屏风与黑框厨房门相呼应,吧台后方也有一个水槽布置,结合吧台侧边与天花的木质感,布置粉色的茶具、几盏情趣文艺的吊灯布置,也让空间显得充满了浪漫舒适的情趣感。
电视墙在硬包背景的基础,装上大理石质感的悬空电视柜,侧边还有一个文化石的柱子
小卧室怎么装修?小卧室装修的时候要注意对空间进行合理的划分,尽量选择多功能或着造型小巧的家具进行摆放,减少家具的占用面积。给卧室床留下比较充足的空间。
卧室以硬包+木饰面的床头墙,结合皮质靠背的床铺,还有灰色的窗帘与床单,整体现代舒适的氛围,结合无主灯的空间,显得充满端庄大方的气质。
【 装修|134平现代简约风三居室,大理石的悬空电视柜装饰画很有特色】餐厅是家里比较特殊的地方,一般只有在吃饭的时候才会使用。需要着重强调餐桌和饮食环境的布置。餐厅的布局方式有独立型、厨房餐厅一体、餐厅客厅一体、厨房餐厅客厅一体四种,在装修时可以根据家中的实际情况来决定。
餐厅旁边还有一个吧台,这使得餐厨空间多了一种情趣舒适的选择。
在简雅时尚的空间视觉下,布置装饰画与陶艺少女兔装饰,营造出一种活泼温馨的浪漫与时尚感。
餐厅两侧分别是吧台与装饰镜面,中间布置上木质餐桌与皮质的餐椅。
厨房装修最重要的两点,一是视觉上干净清爽;二是要有舒适方便的操作中心。橱柜要考虑到科学性和舒适性。对于现代家庭来说,厨房不仅是烹饪的地方,更是家人交流的空间,休闲的舞台,必要的装饰用品还是可以出现的,装饰画和装饰物都可以摆放。
厨房在哑光灰色的墙面基础,搭配白色的橱柜,灰白配的简约空间,使得做饭的氛围也充满清爽舒适的简约感。
推荐阅读
- 装修|乔迁新房3月以泪洗面!当初的不理智,连犯15个极品装修坑!作孽
- 装修|淋浴房还可以坐着洗澡,一开始很不理解,装修后才发现太实用了!
- 施工者|不管家多大,装修时做好这12处细节,美观与舒适并存,幸福感提升
- 心塞|5个月装修一套房,硬装让我喜出望外,结果家具一上全废了!心塞
- 装修|空调外机万万不能这样挂墙,若不是师傅提醒,我家都装错了!
- 洗头|崩溃现场:装修的10条坑,我都替你踩扁了,请你一定要避开
- 卫生间|129平现代美式三居室,打造出一个舒适又温馨的美式家
- 三居室|118平现代风三居室,一个简单而纯粹还原生活色彩的家
- 郑州|买房月供曝光!郑州最新平均工资8694元,撑得起房贷么?
- 抽油烟机|婆婆抠出新境界,5万装修婚房还带家电,如此寒酸真让人不想嫁了
