135平现代简美四室 开放式餐厨

▲ 建筑面积135平,总造价35万,客厅墙面铺贴尼罗河蓝墙纸,自带一种高级感,给现代美式增添一抹温情
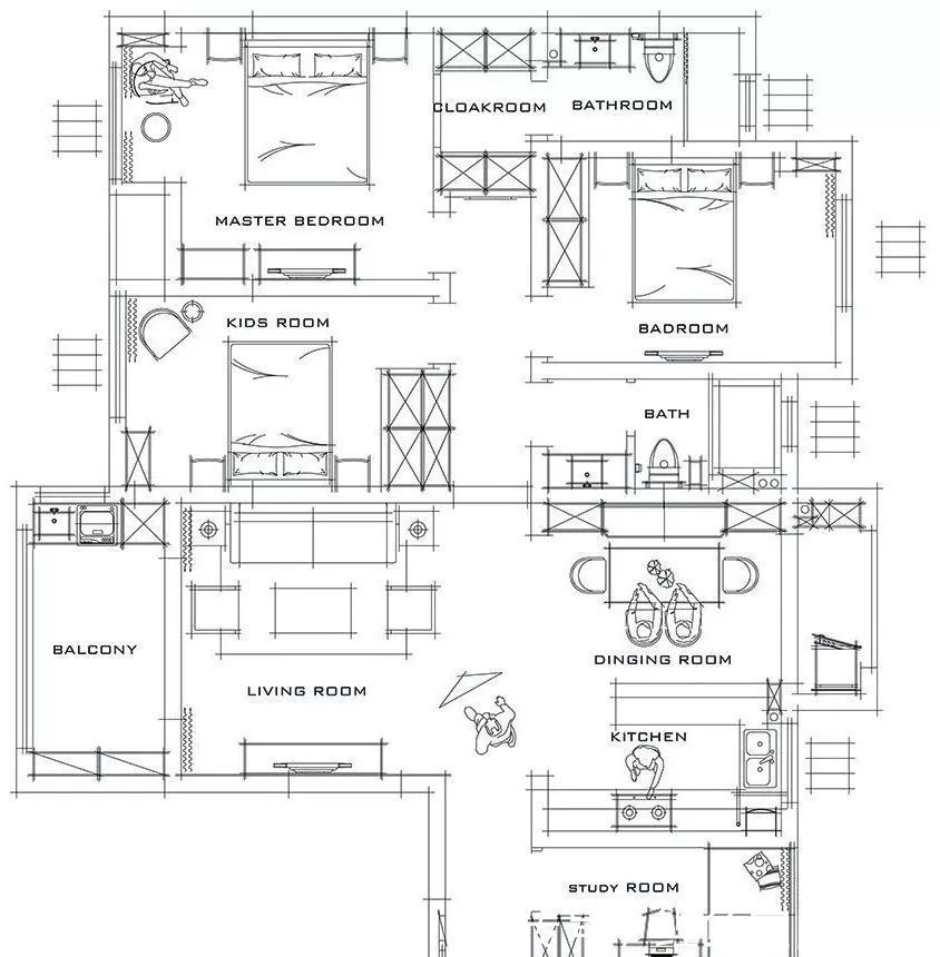
▲ 平面结构图
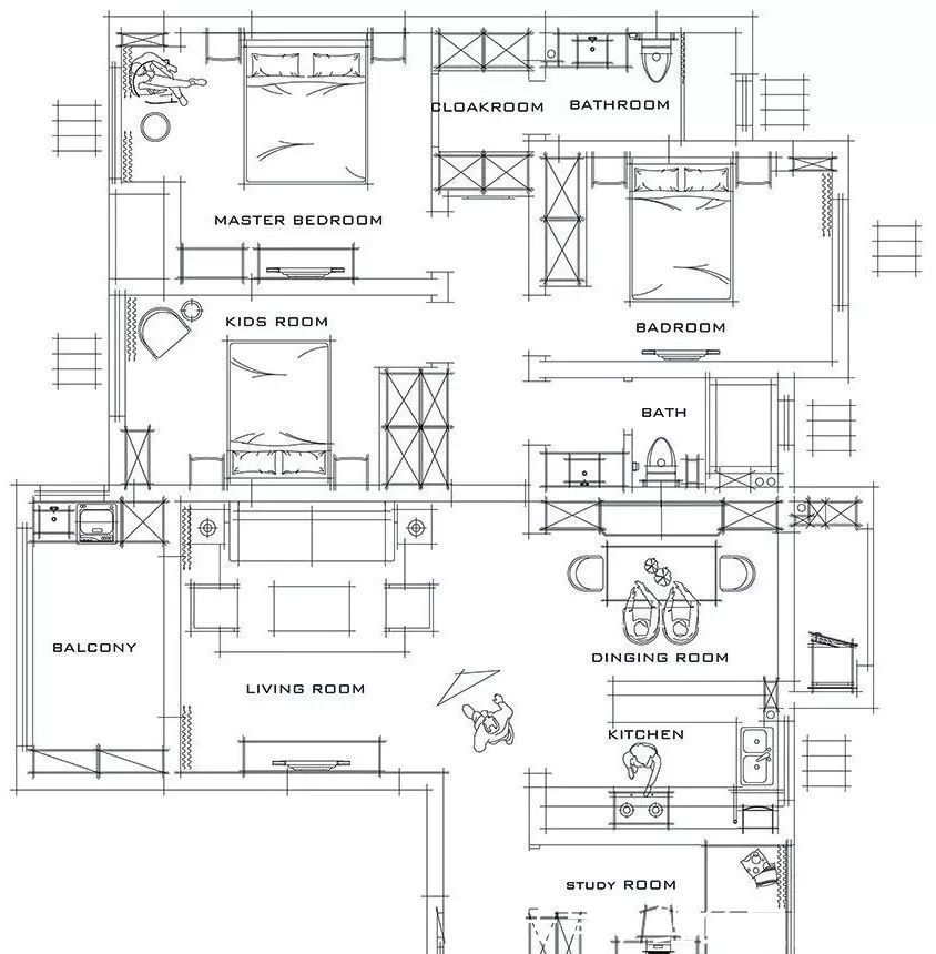
▲ 平面布置图
▲ 沙发背景墙造型与电视背景墙呼应,墙面修长的线条造型拉伸空间视觉
▲ 一束跳舞兰让静谧的空间多了一丝活力
▲ 尼罗河蓝透露着清新怡人的气息,温和而浪漫
▲ 电视背景墙造型与沙发背景呼应
▲ 开放式餐厨设计,功能相互独立,U型空间既可以作为橱柜的操作区域,也可作为吧台使用
【135平现代简美四室 开放式餐厨】
▲ 餐厅利用卡座设计,释放过道的空间,左右设计餐边柜既实用也需要考虑到美观性
▲ 插一束花,换一种心情,学会好好爱自己,爱生活
▲ 过道收纳柜,地柜和吊柜的组合形式不会使空间太压抑
▲ 儿童房,木纹地板搭配拼色帆船壁纸,浅蓝基调的空间创造明亮轻松的就寝环境
▲ 主卧,采用金色壁纸铺贴床背景,用白色线条勾勒造型,搭配柔和浅奶咖色墙面,营造温馨柔和的就寝环境
▲ 卫生间整体通铺现代感的咖啡色瓷砖,搭配白色成品台盆柜与镜柜
推荐阅读
- 现代风|168㎡现代风,带着浓郁的归属感与愉悦感
- 饱和度|173㎡轻奢新中式,古典和现代的碰撞,唯美浪漫!
- 背景墙|97㎡现代风,以时尚打造空间,以新颖突出特点
- 卫生间|129平现代美式三居室,打造出一个舒适又温馨的美式家
- 三居室|118平现代风三居室,一个简单而纯粹还原生活色彩的家
- 郑州|买房月供曝光!郑州最新平均工资8694元,撑得起房贷么?
- 石家庄|144平的面积,无人值守棋牌室,这是如何做到的?
- 简单感|现实的平衡取舍,才是生活之道!143平现代风格设计欣赏!
- 她家148平米,进门就被玄关迷住,不做吊顶跟背景墙,阳台超漂亮
- 修建|精选10套三层户型图纸,占地面积均不足百平,尤其适合新农村修建
