中式|别墅设计两层新中式别墅太棒,不仅带两个露台,庭院还十分巴适!

建筑整体为新中式风格别墅,所以别墅比较干净利落,立面的第一层采用面砖,第二层采用真石白漆,使整个别墅更加的层次分明,线条流畅。同时,第一层用这种面砖的设计不仅看上去更为美观,也让别墅更加的耐脏。
建筑的屋顶采用的是一贯与中式搭配的坡顶,到这个建筑的屋顶坡度不是很高,让别墅不会有楼顶积水的问题,也符合新中式的设计风格。黑色屋顶搭配真石白漆的墙面,使整个建筑看上去更加的简单明了,舒适大方。建筑一共有两层的设计,二楼有个小阳台,阳台上还专门搭了个棚子作为休息地,不管在冬季还是夏季,都可以坐在阳台这里休息,一边喝茶,一边晒太阳观美景,生活又何尝不是一种享受。二楼右边的房间也有个小露台,住起来也十分舒心。
建筑的大门采用的是搭配中式建筑的木门,门口上方也设计了屋顶,不仅可以避雨,也起到了保护门不被淋湿的作用,避免木门因为受潮坏掉。室内的大门用的是同样的设计,旁边的大型玻璃窗使室内更加的通透明亮,室内的空气也更加的清新。
别墅的庭院主要是以留白为主,避免墙面太高遮挡室内的采光。院子的地面主要以石头纹理,这样不仅美观也体现了别墅的质感,搭配角落里养的树木让空间更为开阔,也更加的清新。老人带着小孩在庭院里玩耍,也是一种幸福。
建筑正立面效果图
建筑左立面效果图
建筑右立面效果图
【 中式|别墅设计两层新中式别墅太棒,不仅带两个露台,庭院还十分巴适!】
建筑背立面效果图
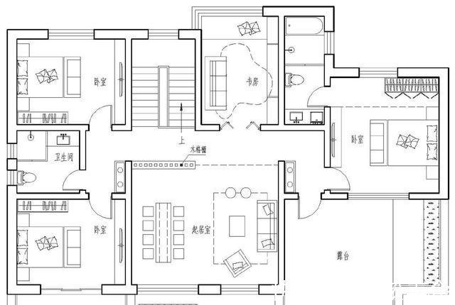
再来看看建筑的俯视图,可以看出建筑的整体占地面积不大,就算家里地基小的也可以满足需求。最后再看看平面效果图:
一层进门就是客厅,便于招待客人,厨房和餐厅靠得比较近,便于平常的就餐,一层一共设计了三间房间,不仅有房间作老人卧,也有空余的房间作客房,便于亲朋好友在家里留宿。
二层也设计了三间房间和一间书房,其中主卧带有独立卫生间和露台,女主人住起来十分舒适,其余的房间可以给家里的小孩居住,让小孩也有独自的空间,最后的书房设计是业主特别要求,业主想要独立的办公场地,平常也可以给孩子安静的学习空间。好了,小编今天的介绍到此结束了,喜欢的赶紧收藏留言吧。
推荐阅读
- 屋主|56㎡小户型老房改造,小而美的设计!
- 饱和度|173㎡轻奢新中式,古典和现代的碰撞,唯美浪漫!
- 餐边柜要做成什么样子才实用又好看看看这几款餐边柜设计
- 收纳|去邻居家参观才知道,卫生间不装柜子这样设计,防潮耐脏好清洁
- 建房子|面宽11米, 进深16.5米的农村三层别墅, 前后有花院还带车库, 完美!
- 别墅|参观亲戚上海的豪宅,别墅硬是住成农村房,真是糟蹋了好房子
- 简单感|现实的平衡取舍,才是生活之道!143平现代风格设计欣赏!
- 木纹板|装修案例欣赏:小北欧风格的居家设计,简洁的同时又不失温馨感!
- 家庭成员|卫生间进门洗漱台,中间马桶,里面淋浴,怎么装?有哪些设计方案?
- 洗衣房|这三款农村四合院设计图让不少城里人羡慕,父母看了也欢喜
