生活方式|127平低调奢华的现代简约风四居室,一种开心的生活方式
业主需求:业主喜欢低调奢华的现代简约风设计理念:设计是一种感受,一种心态、一种舒适的,开心的生活方式
一个美观又温馨的客厅,首先还是离不开设计。因为合理的设计能将每个犄角旮旯都充分利用上,而且也只有合理的设计才能打造出更合适的造型。
不同的花让每天的心情也不一样,也为生活带来浓郁生命力。壁画与餐具在沉稳的墨绿色中相映成趣,营造出格调品质。
提纯装饰主义得以让居家空间得以彻底降温,从家具的选购与色彩,以及布品的搭配,协调、对称的技巧,求让每一个细节的铺排,都释放出令人感觉舒适的气氛。
最终呈现出来的浅淡的色彩,洁净清爽感,这一切都有助于缓解在外忙碌所带来的身体紧绷感。
沙发旁造型简洁的发光饰面,在视觉上使墙面有了层次感,给人一种动感的视觉享受
卧室装修地面铺什么好呢?如果卧室装修打算铺地毯,建议地毯别选太厚的,虽然厚地毯柔软舒适,但因为过厚的地毯易积尘,在日常生活中需要经常打扫。另外厚重的窗帘也是比较容易积灰的地方,因此建议大家尽量别用。
主卧的背景使用的是墨蓝色调,让整体整个空间显得温馨,配上极简的吊顶和吊灯让整个主卧都凸显极简风格。
现代风格,追求华丽、高雅的古典风格。居室色彩主调为高级棕色。
餐厅无非就是一张餐桌,几把椅子,顶多再配上餐边柜、酒柜,但如果赋予不同的色调,餐厅立刻就活色生香起来啦!一个好的餐厅设计,会给生活带去更多快乐,拥有一个浪漫的用餐环境是一件很开心的事情。
简易的餐桌上摆放着绿植,花瓶里端着家人每日买来的鲜花。
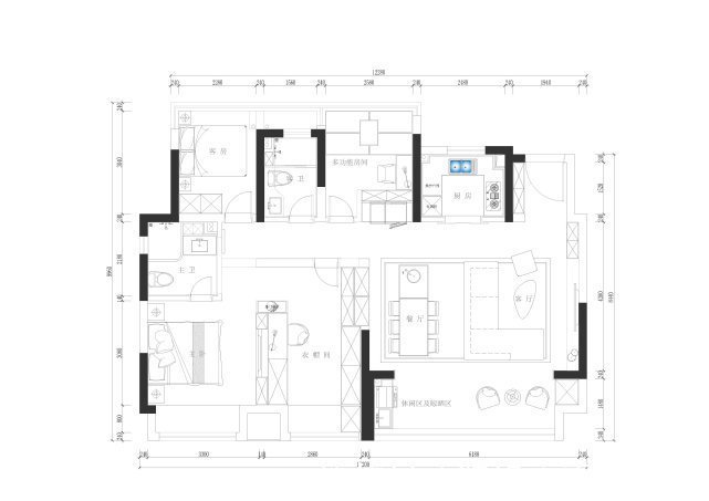
【 生活方式|127平低调奢华的现代简约风四居室,一种开心的生活方式】整体户型方正,活动区域开阔,居住舒适度高;每个房间均有窗,采光良好,同时利于居住空间通风
推荐阅读
- 卫生间|129平现代美式三居室,打造出一个舒适又温馨的美式家
- 三居室|118平现代风三居室,一个简单而纯粹还原生活色彩的家
- 郑州|买房月供曝光!郑州最新平均工资8694元,撑得起房贷么?
- 石家庄|144平的面积,无人值守棋牌室,这是如何做到的?
- 简单感|现实的平衡取舍,才是生活之道!143平现代风格设计欣赏!
- 她家148平米,进门就被玄关迷住,不做吊顶跟背景墙,阳台超漂亮
- 修建|精选10套三层户型图纸,占地面积均不足百平,尤其适合新农村修建
- 南通|拍卖成功!江苏南通一处197平住宅192万成交!
- 购房置业|农村建新房就选这套四层别墅,占地100多平,8间卧室人人都有地睡
- 现代简约|青岛房价不是低洼地了,房价高达1.6万一平
