三居|参观同学的日式风三居,进门就被玄关衣帽间吸睛了,太宽敞舒适了( 二 )

次卧
次卧作为临时客房,布置得简洁舒适温馨,衣柜、木床、床头柜等标配满足日常居住的基本需要。
公卫
公卫做了干湿干湿分离设计,外移的洗手台在镜面灯光映衬下,增添了时尚气息的层次感,里侧的湿区做了内部分区,让整洁明亮的空间更舒适清爽。
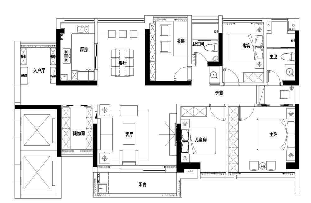
平面布置图
最后是同学提供的平米布置图,看完他家的清新宽敞时尚舒适的美宅,大家都羡慕的不得了,不知你是否也喜欢他家的装修风格呢?
推荐阅读
- 混淆感|146㎡北欧经典白色三居室,诠释令人心醉的优雅
- 中间商|出租房屋可以不用中介,打造自助门店,同样收租金
- 美好生活|欧哲门窗副总经理周志军:「拓」不忘初心同心同德,成为美好生活空间首选品牌
- 客厅|参观向华强和陈岚的豪宅,房子层高太矮了,住着不压抑吗
- 万科|首付745万的房没了还要赔500万!买二手房签合同时注意这8个细节
- 卫生间|129平现代美式三居室,打造出一个舒适又温馨的美式家
- 三居室|118平现代风三居室,一个简单而纯粹还原生活色彩的家
- 上海市|上海今日10盘同日摇号,市区4盘日光!最高认购比392%
- 收纳|去邻居家参观才知道,卫生间不装柜子这样设计,防潮耐脏好清洁
- 小房间|参观140㎡大婚房,朋友都夸餐边柜有档次,我却更喜欢主卧的飘窗
