柜子|再买房,一定要他家这么设计,全屋处处是亮点,挑不出毛病!晒晒!
说到装修,那绝对是一把辛酸泪,比如我家就是如此,装第一套房,只注重美观,结果实用性大打折扣,尤其是收纳方面没有预留足够多的柜子,导致随着时间的日积月累,房子越住越乱,直到看了他的家,不要“电视墙”,直接打一排柜子实用又大气,加之全屋处处是亮点,所以等再买房,我一定要学他家这么设计,毕竟挑不出毛病,不信给各位晒晒!(图片来源@H&Y联创设计)

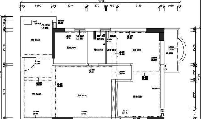
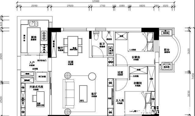
房子位于广州,面积97平(使用面积),是一位大学教授的新家,虽说户型为基本的三室两厅,但结构上有很多差强人意的地方,不过后期都得以改善,至于细节我们从实景图中来一探究竟!
首先是门厅,由于空间比较大,就把冰箱一并摆放到了这里,这样利用率高!
其它的就是玄关柜了,简约的无把手结构看着很大方,而中部留空,便于放些诸如钥匙手包之类的临时小物件!另外,地面的个性化瓷砖也起到了耳目一新的效果。
沿着玄关进来再右转,便是眼前的客厅,前面我们说过不要“电视墙”指的是装饰意义上的电视墙,毕竟很多人喜欢搞造型,但在我看来,有的时候反而没有这种打柜子的效果好,毕竟柜立面看着干净统一,不仅增加了储物空间,也显得也美观大气!

虽说客厅没有阳台是一个遗憾,但有个飘窗也不错,至少增加可以落座的地方,此是其一;其二在于卡座本身就是由一个个储物柜构成,这样非常实用。
家具方面无论沙发还是茶几,统统选用了轻巧的木质结构,如此显得自然大方的同时也显得空间轻盈灵活,只不过前者还铺了布艺坐垫,这样坐着舒服些。
站在这个位置可以看到餐厅,和客厅相对,且有相互对流的窗户,这样空气质量好!但原本那个位置是书房,只不过跟沙发后面的空间对调了位置,才实现了南北通透效果,毕竟原来的户型为横厅结构,而经此一改,入户空间也就多了一个独立的玄关出来。

具体改动图示如上。
来到餐厅,效果很简洁,背景墙以乳胶漆打底,结合简约的装饰画,看着还算舒服。至于餐桌椅,虽然小巧简约,但配以格子状桌布,还是挺文艺的。

推荐阅读
- 贷款|5月起,“2道铁令”,今后这1种买房方式再也行不通了
- 住宅|现在买房,选“高层”还是“低层”好专家20年后差别很大
- 管道|为什么说:再穷也不买二层?了解这些弊端之后,就知道多糟心了!
- 购房置业|上海女子拍下对楼住户家无敌露台,超大空间网友酸了:买房送操场
- 疯狂|1月20日广州新房网签210套,增城以43套再次蝉联榜首!势头强劲!
- 置物区|全屋定制柜子时,记得把这3个柜子做到位,钱不白花用着也舒服!
- 郑州|买房月供曝光!郑州最新平均工资8694元,撑得起房贷么?
- 购房置业|为什么买房不要买靠边的房子?这些问题要注意,开发商不会告诉你
- 小户型|发现丈夫赠人房产 妻子怒讨买房款
- 收纳|去邻居家参观才知道,卫生间不装柜子这样设计,防潮耐脏好清洁
