89平|89平三居室新房,进门鞋柜太满意,这么装漂亮又省空间,晒晒!
这次分享的案例坐标在合肥,89平的三居室新房。屋主是一对年轻夫妻,风格上以北欧风为主,符合年轻人的审美,同时可以达到空间扩充效果,让空间通透不压抑。在设计师的把控和优化下,有透有隔完工后效果清新优雅,如沐春风。(图:1890设计)
89平的三居室户型,改造前空间非常逼仄,空间显得拥挤采光也不是很理想,给人感觉很憋屈。
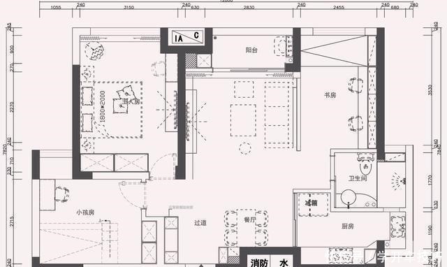
改造后平面图,把客厅与书房墙体拆除,做半高隔墙划分功能区。半开放式设计,客厅与书房相互连通空间更通透,彼此又拥有自己独立的空间。
【 89平|89平三居室新房,进门鞋柜太满意,这么装漂亮又省空间,晒晒!】
完工宽敞明亮,不像改造前那么逼仄。没有多余的装饰,一切整洁自然。轻巧的细腿儿家具,优雅的无与伦比,让人无法拒绝。线条简洁,结构简单,使居家空间更清爽阔绰。

拉平吊顶采用无主灯设计,局部的点光源为客厅提供照明,简洁大气空间自由度高。窗帘盒暗藏灯带设计,提升视觉美感。跳脱的茶几和抱枕,表现出简洁欢快的空间感受。
木纹砖的地面,让家里显得更温馨。电视墙不做任何造型,直接挂上电视简单耐看,圆柱空调与盆栽对称摆放刚好起到装饰效果。入户鞋太满意,与墙齐平漂亮又省空间,功能齐全储物空间大,朋友狂赞!
简洁舒适的餐厅,背景墙相框画装饰,别致的配色与图案为白色的墙面增添了很多美感。壁龛设计非常巧妙,美观实用节省空间。
厨房灰白色搭配,干净简练让人觉得很舒服,白色的墙砖使得空间更为明亮。

主卧自然舒适,浅色的墙面搭配深木色床头柜,显得更加稳重。书桌代替靠窗一侧床头柜更加实用。精致的小壁灯,与窗帘相呼应的床品,让空间更具清新活力。
书房飘窗做了延伸,不仅颜值高还增加收纳。简易置物架,颜色与木纹砖保持一致,视觉效果更协调,搁上一盆小绿萝,将室内外气息很好的串联在一起。

阳台用黑色方格玻璃推拉门隔断,采光更好空间更通透,黑色线条更显几分立体感。利用墙体与推拉门凹进去空间,设计一组储物柜,实用不浪费空间。
推荐阅读
- 装修|乔迁新房3月以泪洗面!当初的不理智,连犯15个极品装修坑!作孽
- 混淆感|146㎡北欧经典白色三居室,诠释令人心醉的优雅
- 疯狂|1月20日广州新房网签210套,增城以43套再次蝉联榜首!势头强劲!
- 卫生间|129平现代美式三居室,打造出一个舒适又温馨的美式家
- 三居室|118平现代风三居室,一个简单而纯粹还原生活色彩的家
- 郑州|买房月供曝光!郑州最新平均工资8694元,撑得起房贷么?
- 石家庄|144平的面积,无人值守棋牌室,这是如何做到的?
- 简单感|现实的平衡取舍,才是生活之道!143平现代风格设计欣赏!
- 她家148平米,进门就被玄关迷住,不做吊顶跟背景墙,阳台超漂亮
- 修建|精选10套三层户型图纸,占地面积均不足百平,尤其适合新农村修建
