仪式感|拯救大面积零碎小空间,取得通透豪宅既视感
每一个家都是一座庇护所,承载着和平、和谐、深刻的归属感。第一次约见的时候,业主说虽然建筑面积140平方,但是客厅太小,感觉只有70平。。。所以本案在户型结构上有比较大的调整,对空间进行了重新规划。风格上,业主喜欢简洁,但又担心太过简单和冰冷。所以我们使用了石材,同时搭配了木头、布艺,暖色调,提升空间温润感。
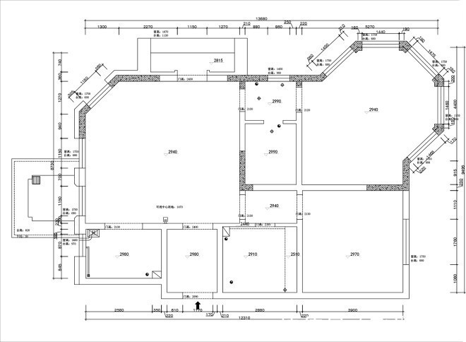
▲原始结构图空间结构虽然看似方正,但也正是困于空间,被割裂的狭小而零碎,未感受到该有的大平层空间尺度。考虑家庭成员生活舒适度的前提下,如何进行空间重组,打破限制,规划功能,提升利用率,成为设计的关键。
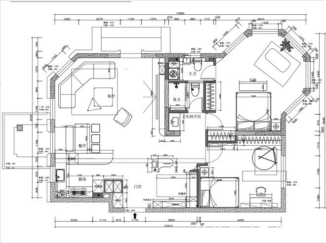
▲平面布置图1.改动原有客卫位置,打开入户后左右两侧空间,延伸视线。2.将不可拆除的下水管道,塑造为有仪式感的造型柱,提升空间立体感受。3.厨房改为开放式,扩大操作面积、增加电器及储物空间,提升鸡肋空间利用率,增加家庭成员的互动交流让烹饪更加得心应手。4.借助卧室和儿童房之间的墙体,分别增加两个房间的储物面积。
▲温润的木饰面吊顶入户及通往卧室的走廊动线,通过木的温润描绘空间的轮廓,用材质勾勒空间结构,提升空间层次,这种温润感缓慢展开至休息区域。

▲错落有致的空间构成。具有形体仪式感的造型柱,洄游动线,打通空间内原本凝滞的气息。
入户衣帽间位置原本无采光,我们从儿童房墙上的玻璃窗洞“借光”到走廊。
▲仪式感造型柱顶部的梁与承重柱采用同材质灰泥处理,让梁成为柱一部分,又进一步将其塑形。

▲拥有墨菲床的秘密角落业主希望有个偶尔有客人来,休息的地方,但又不希望占用太大空间。借用原有卫生间位置,改为可以隐藏的墨菲床。吊顶提前预埋隐形窗帘轨道,既不突兀又能保证客人休息的私密性。
▲储物型电视墙摒弃以电视为中心的传统家庭模式,电视墙改为储物型收纳柜,增加储物空间。
木饰面、微水泥、波浪板三种材质,有节奏的进行造型。
▲围合式空间。

▲自由的客厅组合设计用异形串联割裂的小空间,让原本受限的平面反而转化为独有的空间优势。棉麻质地的电动竖百叶,提升空间柔和感。

推荐阅读
- 现代风|168㎡现代风,带着浓郁的归属感与愉悦感
- 施工者|不管家多大,装修时做好这12处细节,美观与舒适并存,幸福感提升
- 混淆感|146㎡北欧经典白色三居室,诠释令人心醉的优雅
- 灰尘|家中阳台不要装推拉门了,装这种更实用个性,不得不感叹太聪明了
- 简单感|现实的平衡取舍,才是生活之道!143平现代风格设计欣赏!
- 木纹板|装修案例欣赏:小北欧风格的居家设计,简洁的同时又不失温馨感!
- 香港|好住 全新体验!住在景区里是什么样的感受?
- 全屋|164m2现代简约全屋简洁大方,有质感!
- |远嫁3000公里,看到农村婆家给我准备的婚房,我感觉我快要哭了
- 楼层|为何劝一楼带院的高层住宅不要住过来人说出真实感受!太实用
