美观|125平极简风三居室简单美观,打造一个现代生活之家
这个125平的业主是一对中年夫妻,装修过很多套房子,既有生活的阅历也有对生活的理解。本案定位于极简风格,通过简单明快的线条感,搭配品质的材料,打造一个现代生活之家。充分考虑每个空间的功能使用,又和风格达到比较高的契合点。
有些人装修的时候会考虑客厅装修风水,如果一进门发现横梁压顶那确实一个不好的设计,在风水学来讲,客厅的横梁会给人产生一种心理压抑感。建议在装修的时候可以使用天花板或者悬挂饰品加以化解,如果面积够大,也可以以横梁为界设计成两个客厅。
客餐厅为通体式设计。所以在选择家具方面我们做出了一部分的统一,在灰色和布艺颜色的搭配上选择了统一颜色
卧室里一般要放置大量的衣物和被褥,因此装修时一定要考虑储物空间,不仅要大而且要使用方便。舒适度是卧室装修的首要考虑标准。
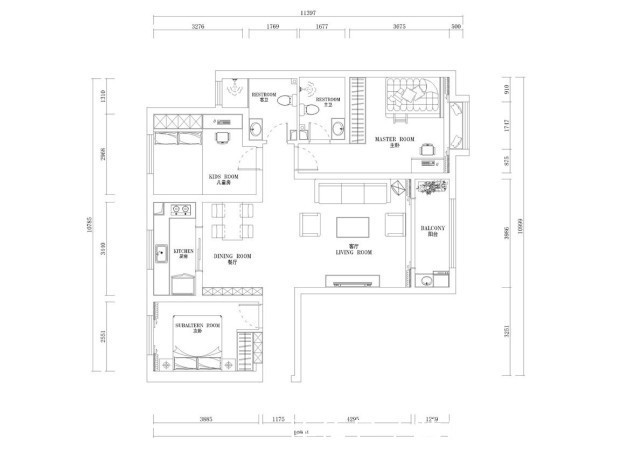
在卧室方面,所以在卧室的部分我们没有制作主次之分,而是把两个房间都当作主卧来设计
有些家庭受制于户型,单独设定餐厅空间比较浪费,这时不妨考虑卡座餐厅,除了一日三餐,还多了个享受下午茶的好地方。卡座餐厅可以搭配两张餐椅,一字型的卡座餐厅适合长方形餐桌,一侧座位是沙发座或者柜子,还能增加收纳空间。
餐厅部分的设计则并没有选择和影视墙对应的制作,而是以一种圆形的方式来和影视墙做呼应。两侧的造影则是为了呼应影视墙的边框选择。
玄关可以给家人一种保护,不至于一进门就对整个家一览无余。如果整个空间比较大而且采光很好,可以考虑用全隔断玄关,也就是从地面到顶部全部设计。如果空间较小,采光不好,建议采用上虚下实,是挡非挡的隔断设计。比如安装木格子或半通透的磨砂玻璃等材料也是不错的,这样保持神秘感的同时还显得很亲和。
玄关统一运用了白色,简单美观,反映了主人简单愉快的生活方式!
【 美观|125平极简风三居室简单美观,打造一个现代生活之家】户型方正,适合一家三口居住。房间线条分明,光照充足,给人简单明了的生活方式。
推荐阅读
- 施工者|不管家多大,装修时做好这12处细节,美观与舒适并存,幸福感提升
- 限购|哈市125家房企将列入重点监管范围,详细名单→
- 薄荷蓝|走进她家,才知什么叫美观与实用并存,全屋温暖又清爽,太舒服了
- 马桶|把洗手台埋到墙里,卫生间一下变大了很多,美观又实用,好处多多
- 吊顶|两米八以下的层高千万别吊顶,学学我家的装修,时尚美观还省钱
- 阳光房|越来越多农村人把露天院子封闭成阳光房,农村又一景,美观又实用
- 罐罐|听我一句劝:厨房别再摆瓶瓶罐罐,学她家这样做,美观方便还不贵
- 柜子|入户玄关这样设计,进门就是惊艳!储物功能超多,美观大气上档次
- 纸袋|她家房子不大,但全屋“隐形”收纳确实惊艳,真是美观与实用兼具
- 卫生间|想在老家建个好房,又没时间常住,这种美观大气的现代风二层别墅,挺实用
