安格拉|有钱就买大平层吧!320㎡打造简约轻奢范,进屋太羡慕了!

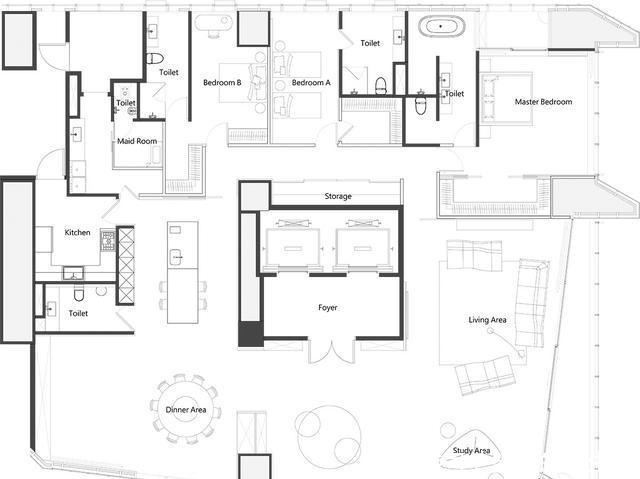
▼装修平面图套内320㎡的空间,将公共领域空间放大,简约纯净的装修格调,以轻浅色调为主,带出简约轻奢质感。
▼玄关设计进门就是一道风景线,全幅落地窗设计,搭配柔纱窗帘,映入澄澈和煦日光。水平铺展橡木实木地板,清晰的纹理烘托自然气息。靠近入户门,利用深沉胡桃木饰板装饰,深浅色对比带出空间层次与温度。
带有柔弧线条的花形沙发椅,点缀装饰形成一处过渡场域。安格拉珍珠石材修饰柱体,清新的石纹络,光泽中流露质感。延伸一道书架墙,嵌入浅木质层架与金属隔板,构筑一道休闲端景。
▼客厅/办公区设计两面全幅落地窗设计,使日光径自蔓延每寸角落,烘托澄澈清宁氛围。客厅与办公区无须实墙分隔,仅靠单品家具轻巧定义空间功能。
角落竖立一座旋转书架,错落有序的书格叠出横纵层次。当日光透窗洒落,交错光影使简净基调添上一抹流动意蕴。木地板按照客厅动线改为纵向铺展,让开阔明亮的空间,悄然划出清晰界线。
▼餐厅设计屋主夫妻指定摆设一张大圆桌,使亲朋好友来访时能相聚共餐。圆桌区以温润木地板围塑自然舒心氛围。圆桌旁,沿着墙面拉伸一道简白储物柜,舍弃明装门把手,还原纯粹通透的空间感。
餐厅与西厨相互连贯,通过地面材质的不同界定空间。舍弃了地板压边条的嵌入,整体效果更简洁美观。
▼厨房设计地面改用浅灰雾面薄地砖,以120*120cm规格,消除紊乱沟缝线条。中岛台与木桌设计,擘出平日简易用餐区。
雾黑色泽装饰墙面,使立面散发沉稳美学力度。中厨入口和客卫门采用意大利FENIX板材作为衔接,形成流畅连贯的视觉效果,与餐厅形成鲜明色彩对比。
【 安格拉|有钱就买大平层吧!320㎡打造简约轻奢范,进屋太羡慕了!】
考虑到用餐享受,安装了电视。以松柏石砌构电视墙,干净利落的纹理,无形中淡化了电视边框线条,勾勒出简洁视觉美感。一道玻璃滑门,成为公私领域之间的清透介质。
▼过道设计推开玻璃滑门依循而入,长条走廊串起三间卧室,利用空间结构拉出平整长型储物间,内部活动隔层弹性放置物品,贴心照明设计提升便利。

▼主卧设计延续简洁纯净设计格调,以温润木地板烘托温馨舒适睡眠环境。沿着过道配置长型衣帽间,ㄇ型衣柜最大限度提升收纳面积。
推荐阅读
- 安置|上城区紫阳街道加速回迁安置 焕新美好家园
- 潘石屹|许家印:潘石屹,为何你能安全下车?
- 西安|2022年西安楼市首批2537套价格公示,到底哪个更值得抢?
- 万科|看了塔吊安装和拆卸的费用,难怪烂尾房开发商直接跑路啥都不管了
- 五星街道|4个中风险区降级,西安现有高中风险区1+17个
- |西晒房、东晒房,一个没人要,一个抢着买,有钱没钱万万要选对
- 房产|定了!加装电梯“新方案”出炉,住户拍手称赞安装不花一分钱
- 朋友说|新居装修万万别这样安装大门,住久了都觉得坑,装错了赶紧返工
- 拆迁|签订安置补偿协议,你要注意这些!
- 暖气片|我们用户在安装和使用地暖时要注意哪些问题?
