床头|140平现代风温馨港湾,艺术气质得到极致展现
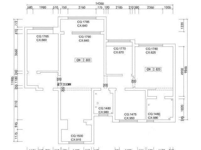
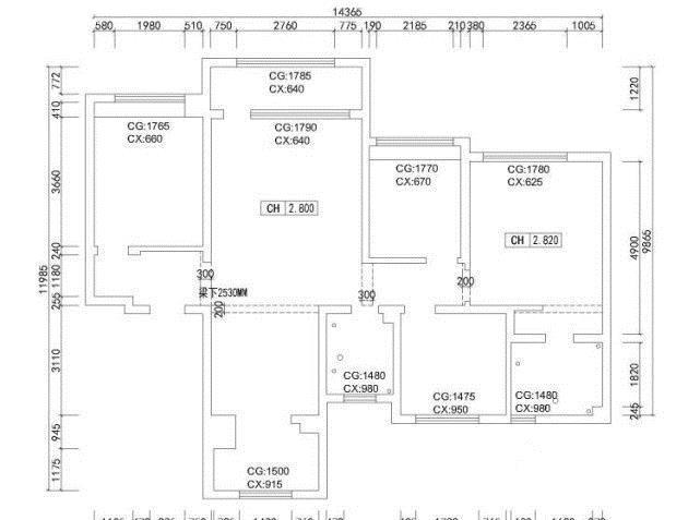
此户型南北通透,户型方正,业主一家三口生活在这140平米的温馨港湾中,色彩与材质等外在艺术气质得到极致展现之外,空间比例、功能使用、绿色环保等方面也要合理把控。
【 床头|140平现代风温馨港湾,艺术气质得到极致展现】想要家里感觉明亮,客厅就要足够的宽敞,所以客厅的装饰不要太多,家具不要太大要留有足够的活动空间,尤其是家里有小孩的。客厅需要注意的就是插座要留够,空调孔一定要提前打好,省的买空调在打空调控,这样会破坏墙面装饰。
在业主的需求下,我们考虑在电视背景墙做出了储物的功能,这样既满足了业主的需求,而且显得空间组合比较统一。客餐厅整个空间在硬装上选择了简洁的路线,黑色灯槽的设计增加了空间的延伸感,客厅以白色,灰色为主,用蓝色调打破整体空间布局,加上零星颜色点缀,既丰富了空间,又使空间充满灵动性。米白色的布艺沙发搭配阿卡瑞拉黑色地毯,奠定了整个空间低调沉稳的气质。
小卧室怎么装修?小卧室装修的时候要注意对空间进行合理的划分,尽量选择多功能或者造型小巧的家具进行摆放,减少家具的占用面积。给卧室床留下比较充足的空间。
整体色调偏深,显得比较稳重。现场打造的工作台和两层置物架十分简洁,靠窗做了一处榻榻米,增加储物空间的同时使书房兼备小憩和客卧的功能。
主卧是业主放松心情、释放自我的空间,墙面大面积以白色调为主,墙面做了AB面处理,床头选择贴壁纸做出了区分,以床头为中心,其他就使用白色乳胶漆不会显得太突兀,也以床头做主,其他为辅。
家庭用餐空间的地面装修资料应该以各种瓷砖或复合地板为首选材料,这类材料具备耐磨、耐脏、易清洗等特点,不仅方便了家庭所需,减少清洁负担,又使得用餐空间变的丰富多彩。
敞开式的餐厅设计,干净清爽的线条让人处于一个放松的就餐环境,不规则玻璃艺术的灯具,让整体视觉更为舒适。
业主希望屋内整洁干净,储物空间多一些,每个空间最少保留有储物的空间。在既保持了业主所需要的储物空间,也做到了整个房屋的美观性
推荐阅读
- 床头柜|95后姑娘的“穷装”卧室火了,环保又精致,软装的力量真强大
- 卫生间|129平现代美式三居室,打造出一个舒适又温馨的美式家
- 三居室|118平现代风三居室,一个简单而纯粹还原生活色彩的家
- 郑州|买房月供曝光!郑州最新平均工资8694元,撑得起房贷么?
- 石家庄|144平的面积,无人值守棋牌室,这是如何做到的?
- 小房间|参观140㎡大婚房,朋友都夸餐边柜有档次,我却更喜欢主卧的飘窗
- 简单感|现实的平衡取舍,才是生活之道!143平现代风格设计欣赏!
- 她家148平米,进门就被玄关迷住,不做吊顶跟背景墙,阳台超漂亮
- 修建|精选10套三层户型图纸,占地面积均不足百平,尤其适合新农村修建
- 南通|拍卖成功!江苏南通一处197平住宅192万成交!
