邻居|农村盖房高度不能超10米,这样建邻居都点赞,第6套只需20万
农村自建房限制越来越多,有的地方限制外观,有的地方限制层数,还有的地方限制高度,碰到这种情况就比较头疼了,到底怎么才能设计一个既满足要求又好看实用的农村小别墅呢?今天新型房屋带来6套图纸,供有需求的朋友参考。
户型1:一层平房加阁楼,多卧室设计更实用,毛坯造价25万起
占地尺寸:12m*16m
占地面积:185㎡(不含庭院)
建筑面积:265.5㎡
建筑高度:7.49m
建筑情况:共设8卧室 2客厅 4卫生间 1走廊 1玄关2储物间

户型2:平顶现代别墅,多落地窗设计,毛坯造价30万起
占地尺寸:13.5m×13.1m
占地面积:153.16㎡
建筑面积:303.24㎡
建筑高度:8.12m
建筑情况:4卧 2厅 2卫 1厨 2阳台 1茶室 1书房 1玄关

户型3:经典大面宽户型,多套间+露台设计,毛坯造价30万起
占地尺寸:15.8m*8m
占地面积:132㎡
建筑面积:301㎡
建筑高度:10m
建筑情况:共设4室 6卫 2厅 1厨 1起居室 1衣帽间 1棋牌室 1休闲区 2阳台 3露台


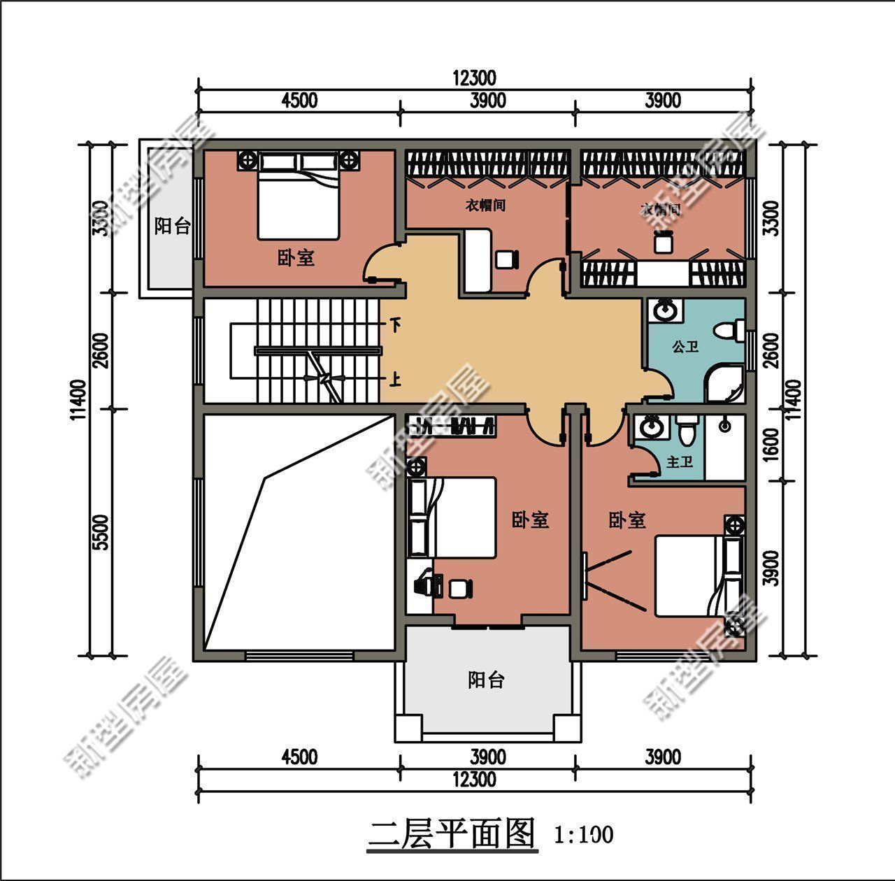
户型4:豪华卧室、落地窗、挑空客厅全都有,毛坯造价40万起
占地尺寸:11.8×11.4m
占地面积:148㎡
建筑面积:414㎡
建筑高度:9.578m
建筑情况:7卧 2厅 4卫 1厨 1露台 1阳台 3衣帽间 1备用房


户型5:新中式风格一层小院,阁楼设老虎窗,毛坯造价30万起
占地尺寸:21.1m*20.5m
占地面积:434.2㎡
建筑面积(不含庭院):329.3㎡
建筑高度:6.2m
建筑情况:共设5室 2厅 3卫 2厨 6储藏室 1阳光房 1休息平台 1庭院
【 邻居|农村盖房高度不能超10米,这样建邻居都点赞,第6套只需20万】
户型6:经典美式小洋楼,双入户门更方便,毛坯造价20万起
推荐阅读
- 收纳|去邻居家参观才知道,卫生间不装柜子这样设计,防潮耐脏好清洁
- 建房子|面宽11米, 进深16.5米的农村三层别墅, 前后有花院还带车库, 完美!
- 别墅|参观亲戚上海的豪宅,别墅硬是住成农村房,真是糟蹋了好房子
- 购房置业|今年起,农村老家的老房子,统统按照“新规”处理,子女提前知晓
- 修建|精选10套三层户型图纸,占地面积均不足百平,尤其适合新农村修建
- 上海市|2022年农村人要“享福了”?实行按户补贴,跟村民们的房子有关
- 洗衣房|这三款农村四合院设计图让不少城里人羡慕,父母看了也欢喜
- 购房置业|农村建新房就选这套四层别墅,占地100多平,8间卧室人人都有地睡
- 别墅|土豪农村盖大别墅,人人羡慕,如今却成为全村人眼中的大笑料
- 购房置业|25万买来的房子,专门用来存放骨灰盒,邻居发现要退房,合理吗
