平将|134平将有温度的设计融入,打造一个别致、摩登的居住空间

【 平将|134平将有温度的设计融入,打造一个别致、摩登的居住空间】简雅的素色基调将视野从局促压抑的空间里释放出来,这是沉稳中的素雅。
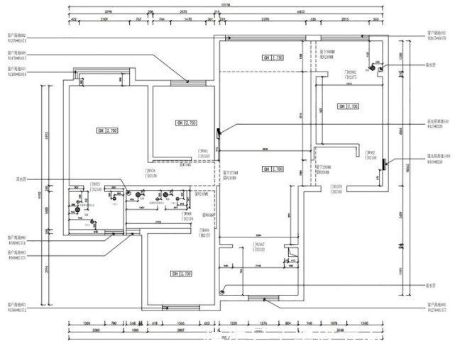
老人房的改动,既方便了用水,又具有看书休闲功能。
餐厅的装修要注意色彩,色彩要温馨一些,能够增加人的食欲。餐厅的色彩适合用明郎轻快的色调,一些橙色系列的颜色给人一种温馨的感觉,也能够让促进人的食欲。
通风净透,自然明亮。增加了储藏空间,让居家告别凌乱。
部分墙体改动,以增加部分较小的空间,主卧的安置具有较大的活动空间,也是业主所希望的。餐厅不承重的墙体,拆除掉
推荐阅读
- 卫生间|129平现代美式三居室,打造出一个舒适又温馨的美式家
- 三居室|118平现代风三居室,一个简单而纯粹还原生活色彩的家
- 郑州|买房月供曝光!郑州最新平均工资8694元,撑得起房贷么?
- 石家庄|144平的面积,无人值守棋牌室,这是如何做到的?
- 简单感|现实的平衡取舍,才是生活之道!143平现代风格设计欣赏!
- 她家148平米,进门就被玄关迷住,不做吊顶跟背景墙,阳台超漂亮
- 修建|精选10套三层户型图纸,占地面积均不足百平,尤其适合新农村修建
- 南通|拍卖成功!江苏南通一处197平住宅192万成交!
- 购房置业|农村建新房就选这套四层别墅,占地100多平,8间卧室人人都有地睡
- 现代简约|青岛房价不是低洼地了,房价高达1.6万一平
