齐家云云|实用132平现代简约木色调三室,趣味,简约,原木
实用132平现代简约木色调三室,趣味,简约,原木,下面就和齐家云云一起来看看吧!
▲ 设计面积132平,造价45万,项目坐标:广东深圳,进门一侧设立了整墙玄关柜,结合换鞋凳、全身镜、衣帽架,满足玄关基本需求,地面采用复古花砖铺贴增加趣味
▲ 原始结构图
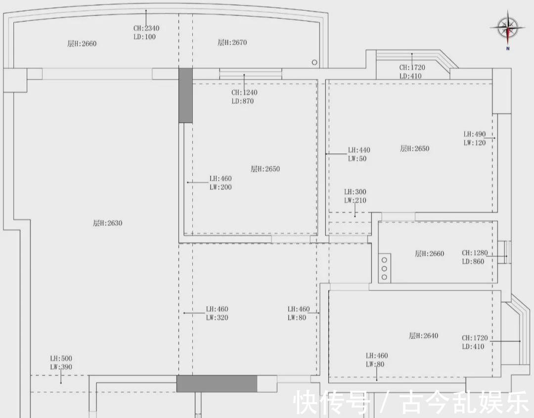
▲ 平面布置图:
1.公卫入口进行改动,扩大玄关空间;
2.过长的过道设计一个休闲区;
3.主卧隔墙向长辈房移动,增加整面大衣柜;
4.儿童房利用主卫部分空间,满足两个小孩的收纳与学习需求;
▲ 经过玄关来到休闲区,使用木质屏风隔断客厅,形成一个看书练琴的惬意空间
▲ 整体空间开敞通透,大量原木色与白色结合,塑造出自然简约的家居氛围
▲ 灰色布艺沙发搭配原木茶几,还原空间自然朴素的本质,原木边柜可以摆放一些常看书籍
▲ 定制整墙电视柜,大大提升储物能力,柜门配色与空间和谐统一
▲ 餐厅,布置原木餐桌椅结合长凳的组合,更加灵活多变
边上做了餐边柜,同时具备西厨功能
▲ 客卫改造后实现干湿分离
▲ 厨房,白色墙砖搭配木色橱柜,高低台面更具人性化,吊柜下方增设手扫感应灯,补充操作台照明
▲ 双床儿童房,靠墙两侧规划学习、收纳、休息功能,实现每一寸空间的极致利用
▲ 主卧延续简约格调,灰色墙面与蓝色调的床品和窗帘搭配,使空间更显静谧,床头点缀精致黄铜吊灯
▲ 借用长辈房部分空间,在床尾增加整墙大衣柜,下方做抽屉收纳,丰富柜体机能与层次
【 齐家云云|实用132平现代简约木色调三室,趣味,简约,原木】▲ 主卫,浅灰色墙地砖搭配木色浴室柜,简练美观。齐家云云提供更多装修资讯,喜欢我的朋友记得收藏和关注哦!(素材来源于网络,无法核实真实出处,如有侵权,请直接联系齐家云云删除。谢谢!)
推荐阅读
- 装修|淋浴房还可以坐着洗澡,一开始很不理解,装修后才发现太实用了!
- 灰尘|家中阳台不要装推拉门了,装这种更实用个性,不得不感叹太聪明了
- 餐边柜要做成什么样子才实用又好看看看这几款餐边柜设计
- 薄荷蓝|走进她家,才知什么叫美观与实用并存,全屋温暖又清爽,太舒服了
- 马桶|把洗手台埋到墙里,卫生间一下变大了很多,美观又实用,好处多多
- 垃圾桶|家庭主妇:厨房地柜不要全打满,空一格更实用!后悔我家装太早了
- 乳胶漆|看她家装修,比样板房还漂亮,电视墙特别实用,值得做参考!晒晒!
- 实用|衣柜太占地方?越来越多人这样装衣柜,好看实用还省地!
- 占地方|家里阳台不要装推拉门了,不实用又占地方,聪明人都装这种代替
- 阳光房|越来越多农村人把露天院子封闭成阳光房,农村又一景,美观又实用
