装修|杭州太太布置的新家,入户看到玄关,我就知道她家“稳了”( 二 )
这个中西厨兼有的空间,色彩依然选择了中性灰色,U型橱柜形成黄金三角动线,让下厨的她更加从容。
主卧室

区别于客餐厅,她给几个卧室都铺上木地板,给休息区注入更多的自然温度。挑选的大床带有弧形床靠,增添了几分优雅,再装上两盏球型吊灯,刚柔并济的空间让人满是欢喜!
卧室里自带一个飘窗,如果能拆除就制作一个收纳柜,但它是承重结构自然不能去掉,在上面铺块软垫,就成为她一个清净的休闲区。
装修建议:飘窗可不能随便去掉,如果是承重结构,会伤到房子主体,带来安全隐患。
书房
进入书房,迎面而来的是干净与利落,一侧是整面墙的书柜,而另一侧是书桌,中间留出最大的空间。这里的装修搭配也不错,纯粹的功能传递出浓浓的文化气息,不杂乱显安宁就是最好的学习与办公场地。
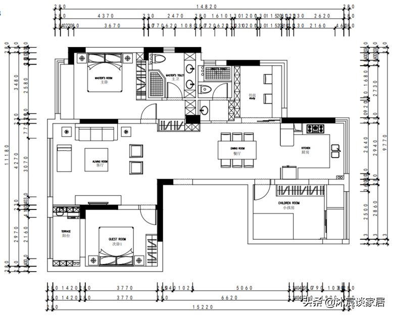
设置一间独立的书房,也是因为家的面积够大,上面是这个家最后的平面布置图,因为户型很好,没有做太大的改变,一家四口住在这个140平方的家里,实在很幸福。
女儿房

两个女儿住在一起,放一张上下床带来很高的趣味,以线型灯带取代主灯,立即让卧室显得高级起来,同时不会显压抑。

【 装修|杭州太太布置的新家,入户看到玄关,我就知道她家“稳了”】再来看卫生间里的装修,同样在细节上很值得借鉴,以好打理、好看进行出发,你会发现等入住后,生活会更轻松。
以上便是本期分享的,的确是一套沉稳不失奢华的现代轻奢风格,整个色调和谐统一,越看越喜欢。我是沐宸谈家居,一直以来专注于帮助和我一样的年轻人住得更好,我会定期分享装修案例、家居生活知识与生活好物种草,欢迎关注一起探讨美好的家居生活!
想了解更多精彩内容,快来关注沐宸谈家居
推荐阅读
- 装修|乔迁新房3月以泪洗面!当初的不理智,连犯15个极品装修坑!作孽
- 装修|淋浴房还可以坐着洗澡,一开始很不理解,装修后才发现太实用了!
- 施工者|不管家多大,装修时做好这12处细节,美观与舒适并存,幸福感提升
- 心塞|5个月装修一套房,硬装让我喜出望外,结果家具一上全废了!心塞
- 装修|空调外机万万不能这样挂墙,若不是师傅提醒,我家都装错了!
- 洗头|崩溃现场:装修的10条坑,我都替你踩扁了,请你一定要避开
- 抽油烟机|婆婆抠出新境界,5万装修婚房还带家电,如此寒酸真让人不想嫁了
- 房子|越来越多人用这“两个方法”装修房子,可升值十几万!
- 卫生间|房屋装修6大暗坑,哪个踩了都会导致返工,希望你没踩到。
- 木纹板|装修案例欣赏:小北欧风格的居家设计,简洁的同时又不失温馨感!
