艺术|把色彩用到极致她的家是艺术大片
第一次和她讨论这套房子的设计方案时,我问:‘你想要什么?’她说:‘想要有色彩、温馨的家。在城市里的精神自留地,打开门,便进入另一种生活。’


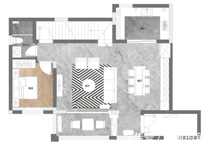
户型是叠拼叠上,五室两厅一厨三卫带露台,这类房型因为有足够多的房间,亲子家庭选择比较多。房间整体比较方正,所以我们改动并不多,此次全案设计的方向更多是从用硬装造型、材质,还有软装呈现上营造业主想要的温馨氛围感。设计的概念就是“画布”,把艺术感融入生活,硬装上简约分明的线条,不同色彩的有序间隔,软装恰到好处地点晴,带来气质改变,赋予生活趣味。
客厅电视墙的明媚黄与墙面的色彩相互碰撞,色块跃动其中,通过不同堆叠组合方式,创造出复古又时髦的设计。
壁灯和落地灯的造型更有设计感,还运用了各式各样的不同材质来打造,现代的、未来感的都安排上。
现在大家越来越看重软装,是因为知道出彩的软装不仅可以让整个家更高级,给硬装添彩;而且能带来实实在在的舒适体验和美好享受。我们为业主搭配的这一款沙发,外在轮廓的雅致线条,手工纺织的柔软质感,慵懒地倚靠在舒适的沙发上,看一部经典电影,悠闲惬意的周末时光,宅在家,就够了。




阳台部分抬高与客厅做了分区,业主女儿喜欢画画,这里就是为她打造的一方小天地。从此这里成了小女孩最喜欢的角落,坐在造型萌态的小凳上,观察室外风景一年四季从早到晚的变化,用画笔留在纸上,对生活这门艺术的理解,潜移默化在心中变为永恒。
餐厨空间在雅致的色调中暗藏着精致的纹理,白色石材餐桌、丝绒餐椅质感肌理游走其中。美味的食物上桌,精心布置的花艺, 围着餐桌,享受美食,聊得畅快,温馨欢愉的用餐时光。
卧室是按照三代人不同的生活习惯和爱好打造的。主卧顶面是挑高的尖顶,我们做了弧形两翼造型的吊顶,像翅膀又像船帆,既保留了空间的高度又美化顶面,一侧装有灯带,柔和的光在卧室里延伸,光线倾洒,开启每日温暖。

业主喜欢色彩就来些大胆的色彩,床的背景造型两头微微向内卷,一深一浅的绿色将造型墙一分为二,南瓜红的丝绒双人床散发着温暖意境,沉醉于一室慵懒的斑斓之中,按下忙碌生活的暂停键,伸一个无比舒畅的懒腰。
推荐阅读
- 三居室|118平现代风三居室,一个简单而纯粹还原生活色彩的家
- 置物区|全屋定制柜子时,记得把这3个柜子做到位,钱不白花用着也舒服!
- 马桶|把洗手台埋到墙里,卫生间一下变大了很多,美观又实用,好处多多
- 插头|老公花了100块钱把家里插座装成这样的,再也不用拔插头了,真是太机智了
- 购房置业|夫妻俩大胆改造老房,坚持把3房改为1房,过于舒适了
- |工地烂尾了,开发商为什么不把塔吊撤走?还要继续给租赁公司租金吗?
- 玄关柜|房子再小也要把这7个地方装上柜子!比多买一间房都值!
- 阳光房|越来越多农村人把露天院子封闭成阳光房,农村又一景,美观又实用
- 书房|成都80平三室之家,一体式餐厨设计,仿佛把日剧场景搬回家
- 画堂春|《画堂春》22首:寒风总把老枝欺,栖乌何故声啼?
