老屋|爆改30年房龄老破小,老屋也可以很治愈
今天要分享的案例是来自北京的老房子,面积66㎡,房龄已经30年了。屋主家为了孩子上学,置换的这套学区房,算是真正意义上的老破小了。
【房屋信息】
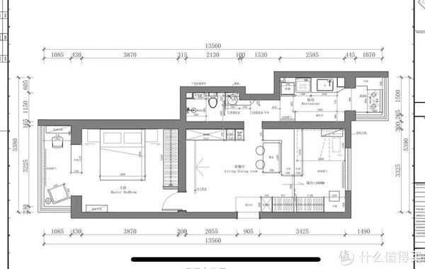
【 老屋|爆改30年房龄老破小,老屋也可以很治愈】面积户型:66.1㎡,两室一厅。户型是比较狭长的,从南到北依次是阳台、主卧、客厅和次卧
改造成本:33万
改造时长:4个月硬装完成
【户型问题】由于是三十年前的老小区,所以按照今天的设计标准来看,存在很多的户型问题。
- 客餐厅被南北两个卧室相夹,采光很差,且客餐厅面积很小,仅能放下一张餐桌,无法实现客厅功能
- 厨房很窄长,拢共只有5平米,还有两个柱子分割
- 洗手间门和厨房间门相对着,过道狭窄,两扇门互相打架
- 阳台没有下水,无法安装洗衣机

- 由于家中有小孩和猫咪,需要考虑他们的需求
- 要把洗衣机和烘干机安排进来
- 屋主希望能拥有一个客厅空间
- 需要改造出更多的储藏空间

屋主表示,希望客厅能大一些;还想等儿子长大一点后,能有一个属于他自己的卧室。设计师为此做了一房两用的设计:将次卧的墙拆除,让出1/3面积给餐客厅,这样整个客厅也亮堂起来了。卧室用地台抬高20公分,餐客厅和卧室中间用柜子做了不完全地隔断,分割出两个空间。现在的次卧区域用来休闲和办公,等儿子再大些就是他的小天地了。

隔断柜、卡座、餐桌,完成餐厅的功能。客厅做了两排通顶的储物柜(顺带一说,卡座也是储藏柜),无拉手设计简洁大气。
由于客厅太小,没办法做传统的电视墙+沙发。于是在这里放上大幕布和高清投影仪,到时候就可以坐在卡座上边吃夜宵边看电影!虽然这里现在看起来还空空荡荡的,等以后软装入场,可不要太热闹!
【厨房&卫生间】

不得不说,这个厨房是整个设计中改动最大的部分了。房子刚买回来时候,燃气灶放在下图片最左边的位置,空间非常局促。加上阳台没有下水,洗衣机和烘干柜只能往这里放。厨房还要有冰箱,屋主还希望能有烤箱、蒸箱、洗碗机。设计师为了设计好厨房,结合屋主家的生活习惯来来回回改了好多版。
现在的成品让屋主一家都很满意:冰箱在厨房最外侧,方便拿取零食饮料;集成水槽自带洗碗机,解放双手;灶具选择蒸烤一体集成灶,黑色机身和小清新风格一点也不违和,而且蒸烤炒煎炸什么都能做。起初屋主一家还担心集成灶吸力问题,那时候设计师带他们去了门店,现场体验集成灶炒辣椒,屋主当时就满心欢喜,直接定了一台机器。现在他表示厨房里最赞的地方就是这台集成灶,原先装吸油烟机的地方还能安装一台燃气热水器,这样的厨房才是真正的麻雀虽小五脏俱全。


洗手间的门本来是和厨房门相对的,过道比较窄,所以都没有设计房门。厨房用半截布帘隔开(有没有武林外传里的厨房的感觉?!)洗手间干湿分离,用长虹玻璃移门隔断。洗手盆外置,方便平常洗手洗漱。由于家里养了猫咪,猫水盆和食盆都是放在洗手盆和厨房的中间走道上,不仅方便投食,也容易打扫整理。
推荐阅读
- 佛山|90后夫妻爆改异形破旧老房,67㎡也挤出小三室,还有专门的工作室
- 房贷|被房子偷走的30年!当还完贷款,除了房子我们还有什么?
- 月供|房贷年限选20年还是30年好?幸好朋友提醒,不然又该吃大亏了
- 砖混|5款带院子的农村别墅,30年后,我想住在这样的房子里养老
- 英国下议院|英国一栋大楼突破买房人的常识,维修需要花掉1203亿,工期30年
- 地线|水电装修“走地”还是“走顶”30年老工长直言,选错等于毁了房!
- 客餐厅|小户型也可以很精致,77㎡两房一厅爆改后,两个人住太舒适了
- 差距|40年和70年产权的房子,只是有30年差距吗?看内行人这么说
- 等额本息|92万房贷,30年有多少利息?银行员工:有人还傻傻给银行“送钱”
- 利率|买房贷款30年,利息相当于一套房,银行员工不要傻傻给银行送钱
