北欧风|北欧原木风,150㎡,如天然薄荷般清新怡人,是我想要拥有的家!
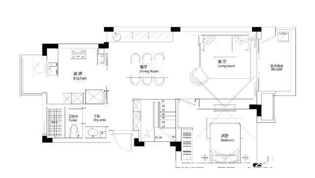
今天小编给大家分享一个150㎡的现代北欧风设计案例。本案是一家三口加上父母,三代同堂。屋主喜欢台式的结构感和北欧的清新色调,设计师在满足功能性的同时结合原木打造出清新惬意的舒适空间。快跟随小编的步伐一起来欣赏一下吧。(图源:TK设计)【户型图】
一层
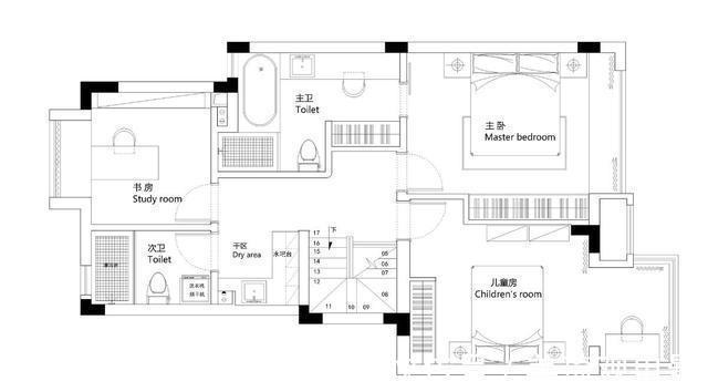
二层【客厅】
▲吊顶采用极简的直线条,显得空间通透明亮;沙发背景墙只用了简单的石膏线条装饰,对应了纯白的电视背景,整体显得简洁、随性。
▲一个优秀客厅应该集休闲与放松于一身,打造平静而优雅的氛围。灰色,原木色和白色的色调,清新自然;绿植的装点让整个家居空间充满自然气息。
▲柔和的高脚皮质沙发,显得空间舒适又轻巧,生活在这样的空间里感觉很放松。【餐厅】
▲北欧风崇尚自然感,原木餐桌椅完美地保留了材料的原始质感,你看不到任何的花纹和线条装饰,实用不花哨。这种轻便简洁的装修风格一直受到当代人的追捧。
▲餐厅与客厅在同一水平线上,两者之间没有任何隔断设计,整体空间十分连贯通透,整个家都显得更大了。
▲餐边柜质感高级,开放格的设计,时尚大气。同时作为西厨区不仅满足了操作空间,还解放了厨房的储物需求,精致的餐具和装饰摆件,好看又实用。【厨房】
▲把小阳台包进了厨房里,厨房空间变得更大更明亮。橱柜延续白色和原木自然的色调,干净整洁。【一楼卧室】

▲窗外正对风景,采光充足。房间内没有做过多的设计,浅咖色的背景墙搭配深色的家具,显得宁静又舒适。【一楼卫生间】

▲干区墙面用的是经典的小白砖,搭配金色圆形梳妆镜,小巧又精致。
▲淋浴房地面铺上拉槽,因为凹槽的设计,水可以顺着凹槽排出,有效防止打滑,造型也更美观。【楼梯】
▲楼梯设计采用了玻璃和木质包边,白色和木色的结合再加上玻璃的通透感,再次提升空间的高级质感。【二楼卧室】

▲灰色调的硬包背景墙搭配咖色皮质床靠背,凸显高级感。
推荐阅读
- 混淆感|146㎡北欧经典白色三居室,诠释令人心醉的优雅
- 长沙|本周末长沙预计2项目开盘!北二环旁毛坯盘推新
- 公示|一处体育中心项目、一处小型口袋公园!市北两项目规划公示,配套升级
- 木纹板|装修案例欣赏:小北欧风格的居家设计,简洁的同时又不失温馨感!
- |2022年1月20日淮北楼市 淮北备案42套
- 购房置业|实探北城3盘,售楼部没销售、全程“自助”看房?现场人气曝光
- 购房置业|造纸业在北海铁山港区将再征地1405.2亩
- 楼盘|现代·森林国际城|仙北新拍现场图片,实时了解楼盘新动态
- 北碚|重庆北碚高端别墅群,数量众多依山而建,满目疮痍好比世界末日
- 手工|北京顶级复式别墅试铺天匠手工地毯,奢华之中不失优雅情调
