书房|如果你家也是110㎡三居室,这套装修可作参考,格局设计很经典!
#百度家居大师团#110平左右的三居室一直都是比较主流的刚需户型,一般都是三室两厅一厨一卫的格局,各个功能空间的面积都不算大,只能说刚好满足日常活动和使用需求。但随着人们物质生活水平的提高,对于家居的理念也在发生变化。同样的三居室,过去人们装修也仅仅是从风格上入手,在户型格局方面基本上不会做任何变动。
但现在大家都逐渐意识到房子对于我们而言,除了满足我们的基本生活需求,更是一个满足我们精神需求和情感需求的地方。正因为如此,室内装修开始注重开放式的设计,开始注重家人之间的互动性。今天小编给大家分享的就是一个非常经典的三居室改造方案,将空间合理、恰当地打开、放大,让刚需户型也能拥有大户型的开阔明亮感,从而提升居住者的生活体验感。本案例操作难度低,可借鉴性极高。话不多说,快跟随小编的步伐,一起来看看吧。

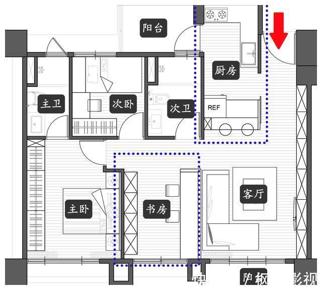
虽然没有原始户型图,相信大家也能看出原本房子的格局,进门后是个封闭式的厨房,厨房外带有一个小餐厅,再往里走就是客厅,带有一个阳台。三间封闭式的卧室以及卫生间位于内侧,主卧带有一个小卫生间。这是个很传统的户型。针对现在人们的生活习惯,设计师进行了如下改造:①打开封闭式的厨房,就餐吧台的形式。②将客厅后面的小卧室完全打开,设计为开放式的书房,让公共区域变成“大横厅”。
玄关 餐厨区
商品经济爆发的时代,相信读者们都感同身受。各种各样、五花八门的家居生活用品燃起了我们疯狂的购物欲,家里的杂物越积越多。所以很多年轻人在装修新房时,第一句话就是留出空间做收纳,“柜子越多越好”、“柜子永远不嫌多”,都是大家经常挂在嘴上的话。针对这种情况,本案例的设计形式就很值得借鉴。设计师将玄关柜和电视柜连接在一起,一路从玄关通道客厅阳台的位置,可以将整面墙的垂直空间都利用起来。
对于这种整面墙的收纳柜体,业主可以根据自身的生活习惯来合理的划分布局,采用虚实结合的形式,局部增加开放式的设计。
本案例还有一处亮点设计就是餐厨区。如果你也是不经常在家里做饭、吃饭的生活方式,就可以学习本案例的吧台设计。区别于普通开放式厨房只在外沿增加一个就餐平台的设计,本案例采用了半开放式的形式,将吧台包裹起来,还在顶部增加了收纳功能的吊柜,厨房侧面采用了推拉门的形式,可以有效隔断油烟。
就餐区这种类似于咖啡厅窗口的形式,保证了屋主夫妻两个人的互动交流,构成了一幅温馨的家居画面。
外侧吧台座位旁还增加了一组小边柜,整合了对讲机和小平台,供屋主随手放置物品。客厅
▲从书房看向客厅
推荐阅读
- 春节|如果能重来,阳台一定“9不装”,并非迷信,是过来人的经验教训
- 卫生间|什么才叫好户型?来看看这5个标准,你家房子符不符合?
- 住房公积金|什么才叫好户型?来看看这5个标准,你家房子符不符合?
- 银行|如果出现大规模的房贷断供现象,银行和业主将两败俱伤
- 书房|讲真,这是我见过的最完美的边户,没有之一!
- 生活质量|如果有多余的钱,你会提前还房贷吗银行表哥说实话,别不信!
- 简约|又放假又有购房补贴,多地为鼓励生子接连“放大招”,有你家乡吗
- 布局|餐厅布局有很多不一样的设计,看看有没有合适你家装修的效果
- 装修|砸58万装修总结26条良心建议!上千万业主栽过跟头!你家别再错了
- 新青年|多地发展保障性租赁住房,9地年底出新招,有你家乡吗?
