夫妻|夫妻坚持要简约风格,140平3房2厅进门就被迷住了!
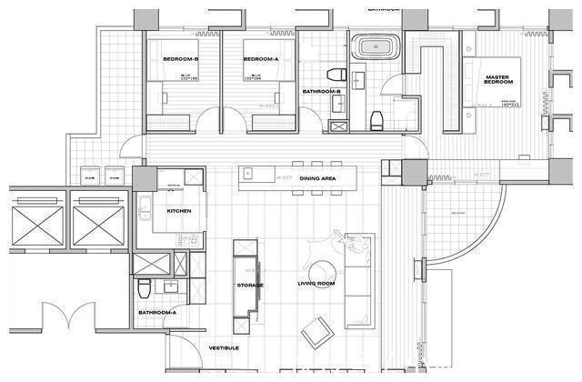
着手新房的装修设计,有时候是从挑选建材开始。希望能创造自然感的居家环境,所以尽量使用天然建材,比如原木贴皮或铁件。规划上,我们让公共空间尽量集中,借此凝聚家人间的情感。屋主一开始先去看了瓷砖,喜欢的风格看似偏向乡村风,比较手感的石材,但后来看了很多案例发现自己还是比偏好简约风格的装修。140平米/格局3房2厅3卫/居住人数2人
屋主需求:1.想要一张很大的餐桌;2.靠大门的地方希望有收纳空间;3.喜欢天然简单的空间质感。

而动线,是这个空间很重要的基础规划。因为梁柱都落在角落,是难能可贵的方正格局。设计师利用空间特性,打破一般在壁面做电视墙的方式,在靠近玄关的位置做了隐含储藏空间的电视墙立面,趁机创造出空间动线,活化格局。
同时让公共空间集中一处,私人空间统一隐蔽在餐厅中岛后方的木墙背后,省却走道空间,让格局呈现毫无死角的完美规划。房屋的装修设计还是比较的重视光线,所以卧房内有安装可调节方向的电动卷帘,避免白天被日光叫醒。但也因此,在整体空间设计上,设计线条的处理或配色,一家人都比较的满意。
虽然这个新房的空间比较大,但没有另外规划书房,如果需要在家工作或使用电脑,就可以运用餐厅的大中岛台面,和家人的互动联结也比较紧密起来。
屋主因为是科技业,喜欢简约也重视视觉的整齐感。有很多屋主注重的细节是照片中看不出来的,比如建材安装时拼接的细腻度,或是门片开门时是否是正90度。
1.客厅设计:因为格局方正,客厅的空间感很完整,采光也很好,设计师将钢刷木皮贴成直条纹,借以勾勒壁面线条感,搭配带石材感的莱姆石,形塑静谧的素净简约感。
为了让视觉不会显得单调,位在客厅的整排收纳墙面,利用白漆和黑色铁件营造柜门的线条设计。

2.餐厅设计:与客厅相连的餐厅,用类似瓷砖质感的耐丽石来做餐桌台面,比较耐重且耐磨,搭配铁件来收纳存储,大方简练的设计感,增添视觉风采。

因为餐桌颇大,屋主平日会在此用电脑或处理公事,同时兼具书桌功能。当有宾客来访,大餐桌也能轻松容纳6~8人。
3.主卧设计:卧房内的天花板是为了隐藏冷气机体,顺道成就空间线条感,床铺旁的立面也做了斜面设计,呼应天花板。
为了营造卧室的温馨感,地板使用集成木地板,每天睡醒踩着温润的地板,开启一天好心情。
推荐阅读
- 房价|房地产要变回支柱产业,你知道吗?
- 灰尘|家中阳台不要装推拉门了,装这种更实用个性,不得不感叹太聪明了
- 餐边柜要做成什么样子才实用又好看看看这几款餐边柜设计
- 万科|首付745万的房没了还要赔500万!买二手房签合同时注意这8个细节
- 洗头|崩溃现场:装修的10条坑,我都替你踩扁了,请你一定要避开
- 购房置业|为什么买房不要买靠边的房子?这些问题要注意,开发商不会告诉你
- 三栋镇|最高8.48万/亩!要征115亩地!涉及三栋、河南岸!
- 棚户区改造|开盘预告|合肥又有6盘要加推,均价1.39-2.54万/㎡全都有
- 购房置业|买房界的黄金法则:好房子横向要宽、纵向要薄,多面朝南
- 买房|二手房指导价意义非凡,主要有这4点,想购房的来看看
