收纳|看完她家后,我彻底被治愈了,全屋色调柔雅纯净,氛围温馨精致( 二 )

▲而床尾的收纳柜,更加称奇。这排杏藕色的高柜,采用50%抽屉和50%吊柜,实现多样性收纳需求。打开衣柜后,还有给穿衣镜,方便更衣整理,让生活更加精致完美。高柜左侧是女主人的化妆台,灰蓝色的台面破除统一色调的沉重感。极简的收纳柜外表看似不咋地,但开启后,林林总总的化妆品完美藏匿,台面一片整洁。 沐宸建议:如果想要家里看着更干净,可以学她家这样的柜体收纳,减少开放式的布局,减少因陈列带来的杂乱感,生活更加井然有序。 
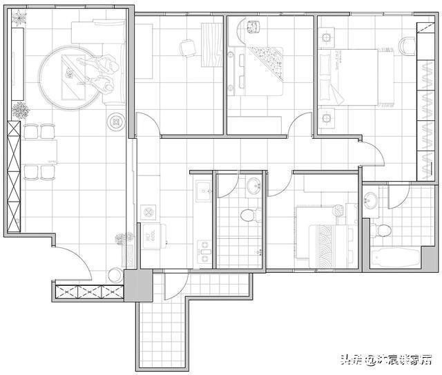
▲附上他们家的平面布置图,36坪的大空间有着四室,每个空间都保留下来,迎接着新的家庭成员。在这样的一个家居布置里,我看到了他们夫妻非常有前瞻性。 首先,室内清爽简约的配色理念,就令人称赞,减少过多的强烈的色彩,选择温暖的配色。例如,客餐里的浅米色,它贯穿整个空间,让室内充满了无尽的温馨,局部再用上小块的色彩,就像沙发背景处的布艺装饰,正是这样的搭配展现出一个色彩递进有序,非常鲜明的空间。 
其次,原木家具的完美,原木家具近几年深受装修者的喜欢,它自然不造作,再配合藤编式的,优雅的弧形线条,呈现一个简约质朴的空间,这样的搭配它不易过时。?再者,随着家庭成员的加入,当宝宝到了一定的学爬行时段,低矮款的家具非常方便移动,让客厅更加开阔。 
最后,就是收纳规划,在明确自己的生活习惯以及储物分配,制作大量且好打理的收纳柜,像玄关处的鞋柜以及主卧室内的衣柜,都有着清晰的设计,让生活更简单从容。 以上便是本期分享的,像这样一套温馨精致又充满着柔雅的家,你们喜欢吗? 方案编辑/沐宸谈家居想了解更多精彩内容,快来关注沐宸谈家居
推荐阅读
- 收纳|去邻居家参观才知道,卫生间不装柜子这样设计,防潮耐脏好清洁
- 她家148平米,进门就被玄关迷住,不做吊顶跟背景墙,阳台超漂亮
- 薄荷蓝|走进她家,才知什么叫美观与实用并存,全屋温暖又清爽,太舒服了
- 收纳|打柜子不是越多越好,6个地方别随便装,多装一个都闹心
- 鞋柜|我家无玄关的玄关设计超赞!左邻右舍来参观,看完都要回家照着装
- 乳胶漆|看她家装修,比样板房还漂亮,电视墙特别实用,值得做参考!晒晒!
- 收纳|这8个位置装修记得装柜子,收纳面积增加20㎡不是问题!
- 罐罐|听我一句劝:厨房别再摆瓶瓶罐罐,学她家这样做,美观方便还不贵
- 收纳|床尾墙这个小地方,装修时容易忽视,到底该如何设计呢?
- 纸袋|她家房子不大,但全屋“隐形”收纳确实惊艳,真是美观与实用兼具
