别墅|102平大平层装修,就砌了一堵墙多出3个空间,设计的太聪明了吧!

这套算是小户型的私人别墅位于华盛顿州卡马诺岛东侧,占地面积一共1100平方英尺(102平方米)。由于地理环境和气候的因素影响这套私人别墅被设计成一个大平层。那么对于平层来说室内的空间布局是非常的讲究的,考虑到每个独立系统互相不被干扰,而且不影响正常的生活活动。也要考虑到自然美景的引入室内,这样的要求对一个设计师来说是一个挑战。也考验设计师的功底。那么今天就和大家一起来带到这座别墅参观一下,希望能够从中学习到更多的创意设计。
前门的庭院完全保留了自然环境原生态,再别墅的周围用的是小石子铺设一条小路。整个屋子隔空撑起,前后门使用了一个水泥构架楼梯入户。进门处没有过多复杂的设计,两边水泥板墙裸露保持了原滋原味的设计装饰。
来到这座别墅的室内。在屋子内部设计有一个大型开放式房间,厨房,餐厅和起居区与卧室之间通过独立的双面石壁炉隔开。天花板上采用的实木调拼接一个大平顶,在屋顶上安装了多个小型射筒灯。
在室的所有空间都可以看见苏珊港湾和喀斯喀特山脉。壁炉上的木质天花板和石材为室内增添了自然感。壁炉就地取材运用小石头垒砌起来的,不仅实用而且还比较的个性。
从这个角度,您可以看到整块天花板如何从内部延伸到外部,从而为户外用餐和休闲营造了一个挡风遮雨的甲板。并且在屋檐下两边配置有沙发和一套座椅,还有一个烧烤架子。提供给我们更多休闲娱乐。
回到里面,卧室位于壁炉的另一侧。主浴室通过一组滑动式现代谷仓门与开放式房间的其余部分隔开。
私人主浴室设有舒适泡澡浴缸,位于窗户前面,可以一边享受泡澡的舒适一边欣赏户外的自然水景。在浴缸对面的墙壁上,有一个厕所和淋浴间,都带有磨砂的门。
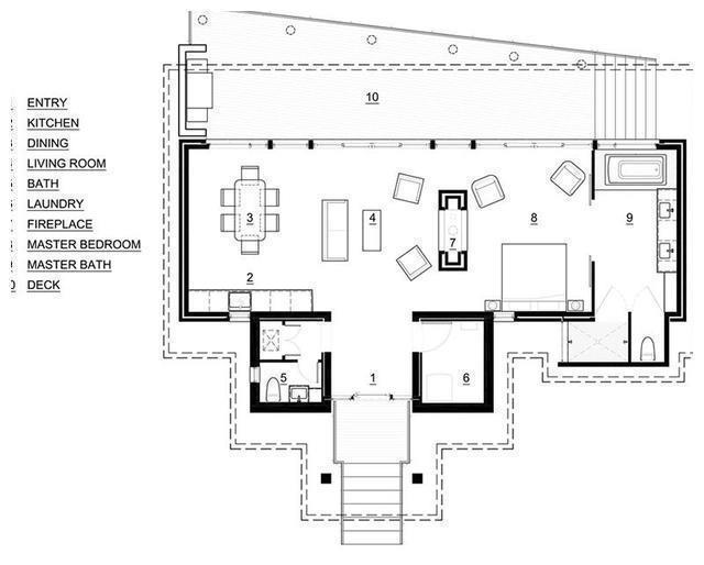
这是平面图,显示了主房间的开放式平面图。
推荐阅读
- 卫生间|129平现代美式三居室,打造出一个舒适又温馨的美式家
- 三居室|118平现代风三居室,一个简单而纯粹还原生活色彩的家
- 郑州|买房月供曝光!郑州最新平均工资8694元,撑得起房贷么?
- 石家庄|144平的面积,无人值守棋牌室,这是如何做到的?
- 建房子|面宽11米, 进深16.5米的农村三层别墅, 前后有花院还带车库, 完美!
- 别墅|参观亲戚上海的豪宅,别墅硬是住成农村房,真是糟蹋了好房子
- 简单感|现实的平衡取舍,才是生活之道!143平现代风格设计欣赏!
- 她家148平米,进门就被玄关迷住,不做吊顶跟背景墙,阳台超漂亮
- 修建|精选10套三层户型图纸,占地面积均不足百平,尤其适合新农村修建
- 南通|拍卖成功!江苏南通一处197平住宅192万成交!
