住宅|规划出炉,江北再添16栋住宅!核心区江景纯新盘本周公开…
再添16栋住宅!江北三大纯新盘规划出炉
7月9日,江北三大纯新盘规划公示出炉,分别是大厂G05地块、G06地块和国际健康城G09地块,这三幅地块均为今年5月20日“两集中”土拍中出让的地块。
【 住宅|规划出炉,江北再添16栋住宅!核心区江景纯新盘本周公开…】
万科国际健康城G09地块
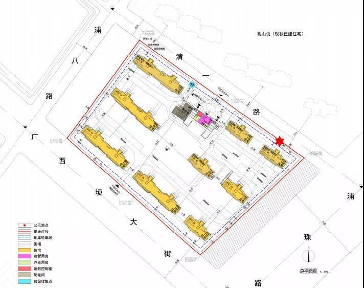
7月9日,南京市江北新区管理委员会公布了NO.2021G09地块房地产开发项目规划方案批前公示。

从规划图来看,项目共打造了9栋9F-11F的小高层住宅,楼栋高度不超过35米,容积率小于1.5,打造的是低密度住宅,居住舒适度较高。

5月20日,新区G09地块经过7+1轮竞价,最终被万科以总价8.3亿拿下,楼面地价23341元/㎡,未来毛坯房销售限价30755元/㎡。
效果图如下↓↓


同天,位于大厂的宿州万成G05地块、长春君地G06地块规划也同步出炉。
宿州万成G05地块体量较小,根据规划显示,拟建造3栋23-24层高层住宅。

宿州万成G05地块位于南京市江北新区大厂街道,山潘四路(待建)以北,山潘三路(待建)以东,通潘路(待建)以南,南浦路(待建)以西,与在建的时代芳华仅一街之隔。

在5月20日土拍中新区G05地块经过17+1轮竞价,最终被宿州万成以总价3.1亿拿下,楼面地价10834元/㎡,未来毛坯房销售限价19420元/㎡。
长春君地G06地块体量也不大,将打造4栋20-26层的高层住宅。

G06地块位于南京市江北新区大厂街道,山潘四路(待建)以北,山潘三路(待建)以东,通潘路(待建)以南,南浦路(待建)以西。

5月20日,新区G06地块经过9+1轮竞价,最终被长春君地以总价4.85亿拿下,楼面地价10289元/㎡,未来毛坯房销售限价19420元/㎡。
宿州万成G05地块、长春君地G06地块这两幅地块均位于大厂老城区板块,目前区域内新房仅有纯新盘时代芳华一家待售。
时代芳华由金地与卓瑞、武汉城建联合开发,共打造89㎡、105㎡、113㎡建筑面积段的房源,全装修售价预计为20920元/㎡-21420元/㎡,预计本月首开。

最快本周公开|江核两大纯新盘最新动态出炉
近期,江北核心区两大纯新盘传出新动态,分别是保利里城G22地块项目、金基映樾项目,其中保利里城G22地块项目最快本周公开。

据置业顾问消息,江北核心区纯新盘保利里城G22地块项目预计本周公开售楼处。
项目由保利里程和启迪联合开发,住宅部分由保利里程负责,项目由A,B两幅地块组成,将打造5栋层高21F-33F住宅,其中3栋住宅面朝长江,共打造480套房源,
推荐阅读
- 住宅|现在买房,选“高层”还是“低层”好专家20年后差别很大
- 武汉市自然资源和规划局|确定了!白沙洲将新添一所高中
- 龙华|品质优越,期待满满!宁波首个定品质地块项目新鲜出炉!
- 公示|一处体育中心项目、一处小型口袋公园!市北两项目规划公示,配套升级
- |2022年起,住宅“新标准”出台?两类房子吃香了
- 南通|拍卖成功!江苏南通一处197平住宅192万成交!
- 兰州|建面约10万㎡ 兰州鱼池口小商品批发市场“变身”住宅小区
- 预售证|2022年首张预售证出炉,新增住宅房源420套!
- 房产|定了!加装电梯“新方案”出炉,住户拍手称赞安装不花一分钱
- 济南|官宣!合肥经开区物业最新排名出炉
