线条勾勒|103平美式风空间,简约设计清丽优雅,线条勾勒层次丰富
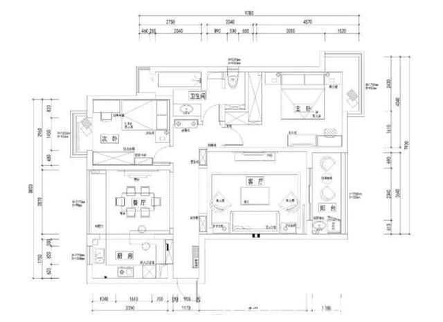
因为房主夫妻之前是在旅居美国多年,因此在设计风格上希望能够选择更加习惯的简约美式风。同时房主还表示,希望这个设计能够体现出一种兼具人文家庭情怀的“暖”意,当步入空间之后,感受到的就是温馨的家庭生活的气息。案例:103平美式风两居居住成员:两人房屋面积:103平房屋类型:两室空间格局:客厅、餐厅、厨房、卫浴、卧室×2主要建材:石膏线、原木、绿植、金属等预算:30~50万设计师:瀚高做美式风的设计就不能忽视石膏线的运用,本案大量利用线条设计,无论是在墙面或者是天花造型上都有,同时还借助于色彩的组合搭配,构建一个充满暖度的生活宅。01【户型图】
因为在原本的房主户型格局当中餐厅的位置是有一个储物间的,这样阻碍了两个场域的通透效果,同时也减少了更多光线的注入,因此在和房主沟通过之后将原本的储物间拆除,重新规划客餐厅场域,让两个机能场域更加通透一些。02【客厅】
设计亮点:清雅空间客厅可以说是一个简约清雅的美式风空间,白色作为主基调,同时利用浅棕色的原木地板组合成为一个休闲自然风浓烈的空间。房屋内的彩度搭配是深浅碰撞融合的,各样的组合并不会冲突矛盾,而是一种和谐的搭配。

设计亮点:石膏墙面电视墙和沙发墙都运用了大量的石膏线作为装饰,线条的加入让空间的力度感更加强烈,同时石膏线也是美式设计当中最经典的元素。电视墙的中间位置也就是放置电视柜处是微微凸出来的,这种设计在目前也比较流行,利用这种凹凸的效果,从而在视觉上增强立体感受。
设计亮点:清丽优雅沙发区的配色是要着重说一下的,亚麻的多人沙发简约而休闲,却搭配了蓝绿的抱枕,这种多用于珐琅瓷和景泰蓝设计的色彩元素很大程度上提升了设计质感,有一种独属于瓷器物的优雅清丽。作者设置剩余内容仅粉丝可见
推荐阅读
- 简约风|台式简约风,仅用质朴的色彩和线条感极强的设计手法,让家更美
- 安装|等我有房了,学她装修,全屋贴钛合金线条,时尚又漂亮,很喜欢!
- 门洞|“穷装”反而更干净舒适,103㎡色调高度统一,耐看极了
- 欧式|这款欧式农村别墅,外观线条方正简单,易于建造。
- 指数|太原杏花岭胜利街1月最贵的小区均价超过2万/平,均价10338元/平
- 装饰|小的空间用简单的用石膏线条装饰
- 销售|荣盛发展2021年签约额1345.58亿元 完成年度销售目标约103.5%
- 装修|晒晒我家新房,103平三房一厅,装修超漂亮,看起来像样板房
- 玄关|看了他家的装修,我决定再买房一定照着装,103㎡新房太漂亮了
- 书房|103平现代风三居室,就这样你还嫌小真是不知足
