别墅|妯娌间不同意合盖新房,兄弟俩只能各自建二层别墅,分家不分情!
很多有兄弟的朋友们,在建房的时候会考虑要不要和兄弟一起各盖新房,建一栋兄弟双拼,这样一来大家可以互相有照应,父母也愿意看到的场面。但是也有不少朋友都反对建兄弟双拼别墅,如果等老了之后,后代们怎么维系,很容易出现矛盾,到时候后悔就来不及了。
因此业主李大哥和弟弟各盖了一栋二层别墅,两间房子的风格不同,我们来看看谁家的略胜一筹吧!
李大哥家新房:
大哥家的新房是现代风的造型,简约时尚,清爽大气,落地玻璃窗的设计不仅增强房屋的美感,并且增强室内的采光效果,通透性强,南北通风,令人心旷神怡。
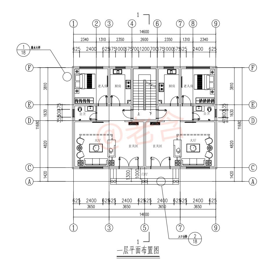
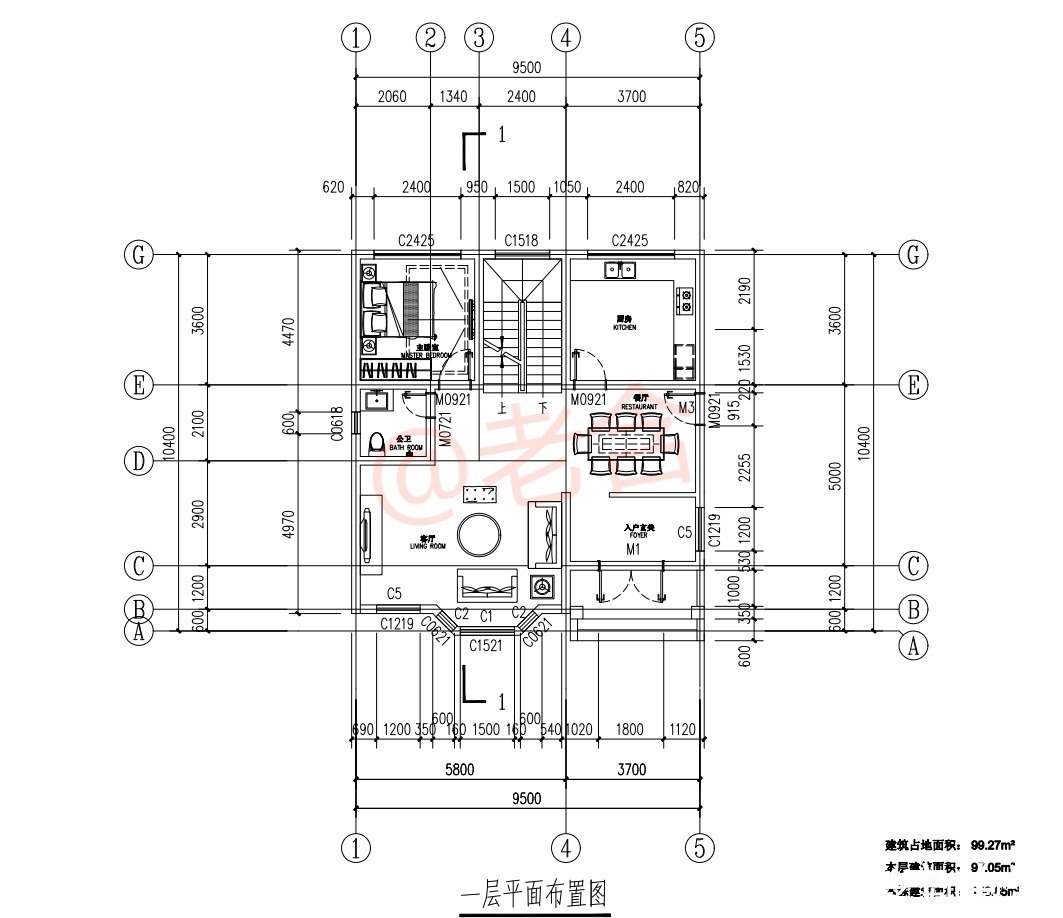
一层:
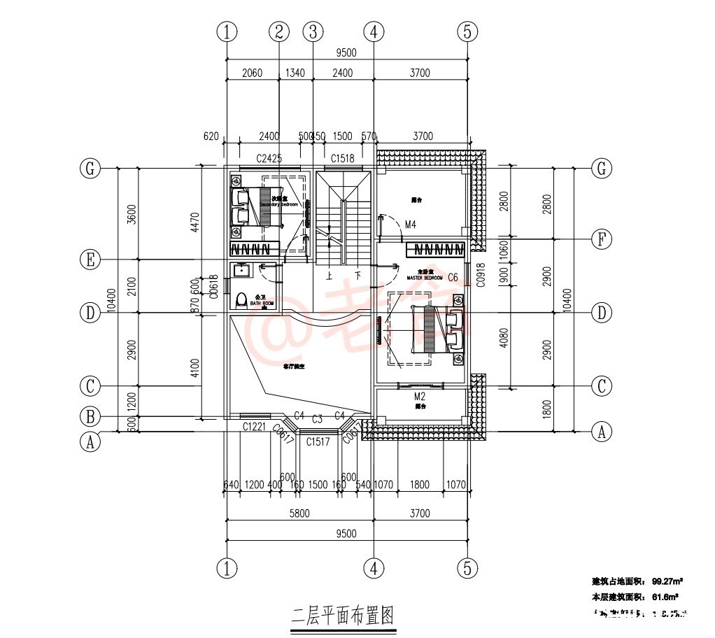
二层:
【 别墅|妯娌间不同意合盖新房,兄弟俩只能各自建二层别墅,分家不分情!】
李小弟家新房:
而李小弟新家造型是欧式风格,复古美观,洋气十足,罗马柱的设计使得住宅具有庄严感,米棕色的真石漆作为外墙面加上仿砖石,层次感分明。
一层:
二层:
李大哥兄弟俩新房盖好之后,亲朋好友觉得两间的新房都不错,还是分开盖房才是明智的选择!
推荐阅读
- 中间商|出租房屋可以不用中介,打造自助门店,同样收租金
- 出售|梅西挂牌出售美国豪宅 2年时间增值200万美元
- 美好生活|欧哲门窗副总经理周志军:「拓」不忘初心同心同德,成为美好生活空间首选品牌
- 银行|请注意!今日起各地房贷利率普遍下降5个基点 业内预期:部分地区房贷利率或仍有下调空间
- 背景墙|97㎡现代风,以时尚打造空间,以新颖突出特点
- 购房置业|上海女子拍下对楼住户家无敌露台,超大空间网友酸了:买房送操场
- 卫生间|129平现代美式三居室,打造出一个舒适又温馨的美式家
- 收纳|去邻居家参观才知道,卫生间不装柜子这样设计,防潮耐脏好清洁
- 建房子|面宽11米, 进深16.5米的农村三层别墅, 前后有花院还带车库, 完美!
- 小房间|参观140㎡大婚房,朋友都夸餐边柜有档次,我却更喜欢主卧的飘窗
