木质|131平的日式风三房,有禅意和文艺范
今天分享的是一套建筑面积131平米的日式风三居室案例,设计师用简洁的原木风家具贯穿了整个家,让人感觉到轻松而又舒适。日式风独特的韵味又带着一丝文艺范,这样的佛系生活,简单而又安逸,让人内心能够平静下来。
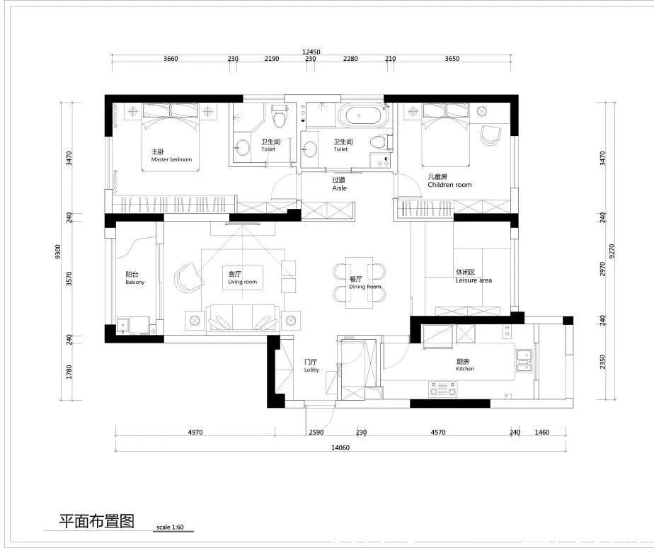
平面布置图
入户的玄关走廊一侧做了嵌入式鞋柜,另一侧是高低不一的换鞋凳,方便屋主一家人坐着换鞋,平时拖鞋也能藏在换鞋凳的底部。
走过玄关走廊就到了客厅空间,客厅的墙面选择了直接刷白的设计,搭配木质的茶几、电视柜和木与布艺结合沙发,让人感觉简约而又自然。
和客厅相对的餐厅空间也同样是选择了留白搭配木质家具的设计,餐厅顶部的吊顶选择了全木质的,让用餐环境变得更为温馨一些。
在餐厅的边上是一个榻榻米休闲区,在榻榻米上摆放蒲团和小茶几、矮书柜,和朋友一起泡茶、聊天和看书都是非常惬意的事情。
【 木质|131平的日式风三房,有禅意和文艺范】厨房内部的空间还是比较宽敞的,设计师选择了U字形的橱柜布局方案,让厨房动线变得更短,储物空间又更多,再加上白色与灰色的结合,简约而又轻松。
主卧室的设计非常的素雅,大白墙搭配灰色的床品、窗帘和木质家具,床尾处做上嵌入式的推拉门衣柜,床头柜边上摆放衣帽架吗,简约自然当中又不失清新文艺的感觉。
儿童房在白与木作为主体的情况下,加入了粉色作为点缀,搭配一些卡通元素,让儿童房变得更为浪漫、可爱一些。
公卫的空间是非常宽敞的,除了淋浴区外还有着一个大浴缸,马桶和洗手台也分列在卫生间的两侧,整体白、灰与木的搭配显得年轻大方。
阳台的一侧被设计师利用起来做成了一个山水小景,另一侧就是洗衣区。阳台上铺设防腐木和文化砖,也让人感觉更为自然文艺。
推荐阅读
- 卫生间|129平现代美式三居室,打造出一个舒适又温馨的美式家
- 三居室|118平现代风三居室,一个简单而纯粹还原生活色彩的家
- 郑州|买房月供曝光!郑州最新平均工资8694元,撑得起房贷么?
- 石家庄|144平的面积,无人值守棋牌室,这是如何做到的?
- 简单感|现实的平衡取舍,才是生活之道!143平现代风格设计欣赏!
- 她家148平米,进门就被玄关迷住,不做吊顶跟背景墙,阳台超漂亮
- 修建|精选10套三层户型图纸,占地面积均不足百平,尤其适合新农村修建
- 南通|拍卖成功!江苏南通一处197平住宅192万成交!
- 购房置业|农村建新房就选这套四层别墅,占地100多平,8间卧室人人都有地睡
- 现代简约|青岛房价不是低洼地了,房价高达1.6万一平
