农村|农村临街自建房,带商铺的设计才实用,第3套造价仅23万
宅基地临街的朋友建房时可以考虑将一层设计为商铺,用作出租或自家开超市都是不错的选择,平时农村房屋一般是老人居住,商铺也可以给老人带来一些额外收入,何乐而不为呢?
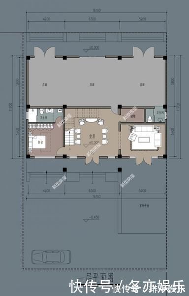
第1套:这套图纸不是传统意义上的商住两用房设计,业主家宅基地较为宽敞,北面临街,那么南侧作为家人日常生活起居使用,设计了一个宽敞的庭院方便停车,还可以栽种瓜果蔬菜。北侧则设计一个大商铺,面积较为宽敞,可经营超市或是水果店。
占地尺寸:16.1m*11.7m
占地面积:188.3㎡
建筑面积:380.9㎡
建筑情况:共设3室2厅4卫1厨1商铺1堂屋1休闲区1储物间1娱乐健身区1阳台1露台

第2套:这套图纸为一般临街宅基地设计,户型面宽窄,进深大,室内主要靠南面的大落地窗采光,东西两侧有邻,设计小窗满足日常生活所需的通风即可。建筑外观设计为现代风格,在农村自建,定能让自家房子脱颖而出。
占地尺寸:8.04m*15.7m
占地面积:111.76㎡
建筑面积:335㎡
建筑情况:共设7室1厅3卫2厨1底商1外廊2阳台


第3套:素雅古朴的中式外观,不仅是商住两用,还是双拼户型,可以和兄弟或邻居一起修建,建造过程能互相帮助,也能节约造价,一般来说砖混结构毛坯23万(单栋)就能搞定。住宅外观为双拼,但室内为单独入户,两家生活独立互不影响。
占地尺寸:18m*12.1m
占地面积:220㎡
建筑面积:440㎡
建筑情况(单户):共设2室2厅2卫1厨1书房1商铺

除了商住两用,你还想看什么样的农村住宅图纸呢?欢迎大家在评论区踊跃留言!
【 农村|农村临街自建房,带商铺的设计才实用,第3套造价仅23万】关注新型房屋,每天都有更多建房知识,乡邻晒家,户型图纸分享。
推荐阅读
- 房产证|婚前财产婚内可以自行处理吗
- 中间商|出租房屋可以不用中介,打造自助门店,同样收租金
- 武汉市自然资源和规划局|确定了!白沙洲将新添一所高中
- 施工|面宽均为12米的两栋自建房,简单施工易,造价25万上下
- 建房子|面宽11米, 进深16.5米的农村三层别墅, 前后有花院还带车库, 完美!
- 别墅|参观亲戚上海的豪宅,别墅硬是住成农村房,真是糟蹋了好房子
- 购房置业|今年起,农村老家的老房子,统统按照“新规”处理,子女提前知晓
- 修建|精选10套三层户型图纸,占地面积均不足百平,尤其适合新农村修建
- 上海市|2022年农村人要“享福了”?实行按户补贴,跟村民们的房子有关
- |龙吟师傅教你在卧室找到自己的桃花位
