现代|夫妻二人大胆将两室改一室,70平之家也很宽敞,巧妙隔断值得学习
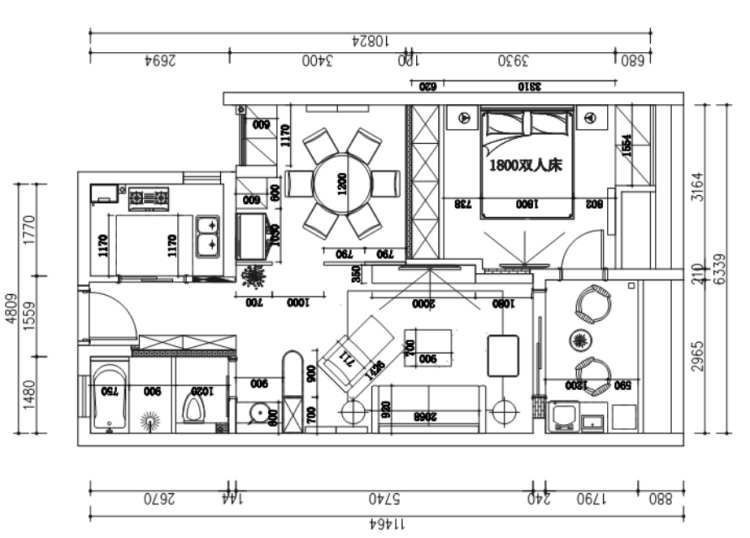
夫妻二人大胆将两室改一室,70平之家也很宽敞,巧妙隔断值得学习房子是为我们提供居住环境的一个场所,而且现在房子价格也比较高,如果花钱买了一套房子居住的不舒心的话,那么真的是让人感觉非常的不舒服,今天给大家介绍的这套房子,面积只有70平米,原本的格局是两室两厅,但是每个空间都会相对狭窄,而业主只有两个人居住,所以为了更好的生活环境,共同决定将两室改为一室,那么改造的效果到底如何?装修案例:现代风设计居住成员:2人房屋面积:70平方米装修风格:现代风房屋格局:玄关、客厅、厨房、餐厅、卫生间、卧室、阳台装修材料:进口瓷砖,实木板材,铁艺产品,乳胶漆,大理石等【户型图】
从装修设计出来的户型图,可以了解到空间确实不是很宽敞,但是户型图只是局部的了解,经过重新改装之后的效果肯定还是会有很大改变的。【装修前的玄关】
玄关在装修之前就是毛坯房的感觉。【装修后的玄关】
设计重点:瓷砖地面经过装修之后的效果,独具现代风的设计,给人一种时尚大气的感觉,进门原木色的鞋柜也是非常的实用,重点是地面选择灰色大理石的瓷砖,还做了简单的造型,独具风情特色。【装修前的客厅】
装修之前的客厅墙面就是最简单的大白墙,石灰的地面。【装修后的客厅】
设计重点:东方韵味整个客厅的设计给人一种东方韵味的效果,白色的沙发搭配黑色的茶几,独具风情的灯饰,以及纱帘和蓝色米色拼接的窗帘,营造的朦胧现代之美,让人倍感舒适。

选择木质栅栏作为隔断,非常具有现代东方韵味的基调,电视柜选择黑色的可伸缩的设计,直接将电视机摆放在上面,也是比较简约大气的效果。【厨房】
设计重点:橱柜门扇厨房做成了封闭式的设计效果,选择了棕色亮面系的橱柜门扇,虽然与其它家具定制的颜色不一样,但是也烘托了另一种效果,而且这个颜色也比较耐脏,地面仍旧选择了灰色纹理的瓷砖铺设,耐脏又时尚。【餐厅】
设计重点:宽敞空间餐厅的空间看起来非常的宽敞,而且也比较有艺术气息,一面墙装饰着大的相框画非常有艺术感,另一面则选择玻璃镜面搭配原木的效果,也是很个性,圆形的大餐桌搭配几把座椅,这样的餐厅吃饭非常有格调。
在侧面墙面的有限空间打造了餐边柜,选择了透明的玻璃门扇,陈列的物品显而易见,也能体现主人的爱好和品味。【卫生间】
设计重点:鱼缸隔断现在非常流行的一种设计卫生间的方式,就是将洗漱柜外移出来,但是也需要一定的隔断,这里选择了鱼缸作为和其它空间的隔断,也是十分的巧妙。
推荐阅读
- 现代风|168㎡现代风,带着浓郁的归属感与愉悦感
- 饱和度|173㎡轻奢新中式,古典和现代的碰撞,唯美浪漫!
- 背景墙|97㎡现代风,以时尚打造空间,以新颖突出特点
- 卫生间|129平现代美式三居室,打造出一个舒适又温馨的美式家
- 三居室|118平现代风三居室,一个简单而纯粹还原生活色彩的家
- 简单感|现实的平衡取舍,才是生活之道!143平现代风格设计欣赏!
- |73㎡复古风两居室,年轻夫妻的高品质生活
- 购房置业|夫妻俩大胆改造老房,坚持把3房改为1房,过于舒适了
- 轻奢风|什么样的生活空间,才算得上是美好现代轻奢风,大道至简
- 楼盘|现代·森林国际城|仙北新拍现场图片,实时了解楼盘新动态
