重庆金融街融府|悠好木全屋定制设计实景案例 | 重庆
▇ 月印 / 重庆金融街融府
▇ 面积 / 170平米(套内)
▇ 风格 / 现代极简中式
本案项目是套内五室两厅大平层,业主家三代同堂,希望通过设计构造出一个舒适简洁并存有艺术的空间。
设计在追本求源,也在释放本质,变幻出无限可能的空间气质。
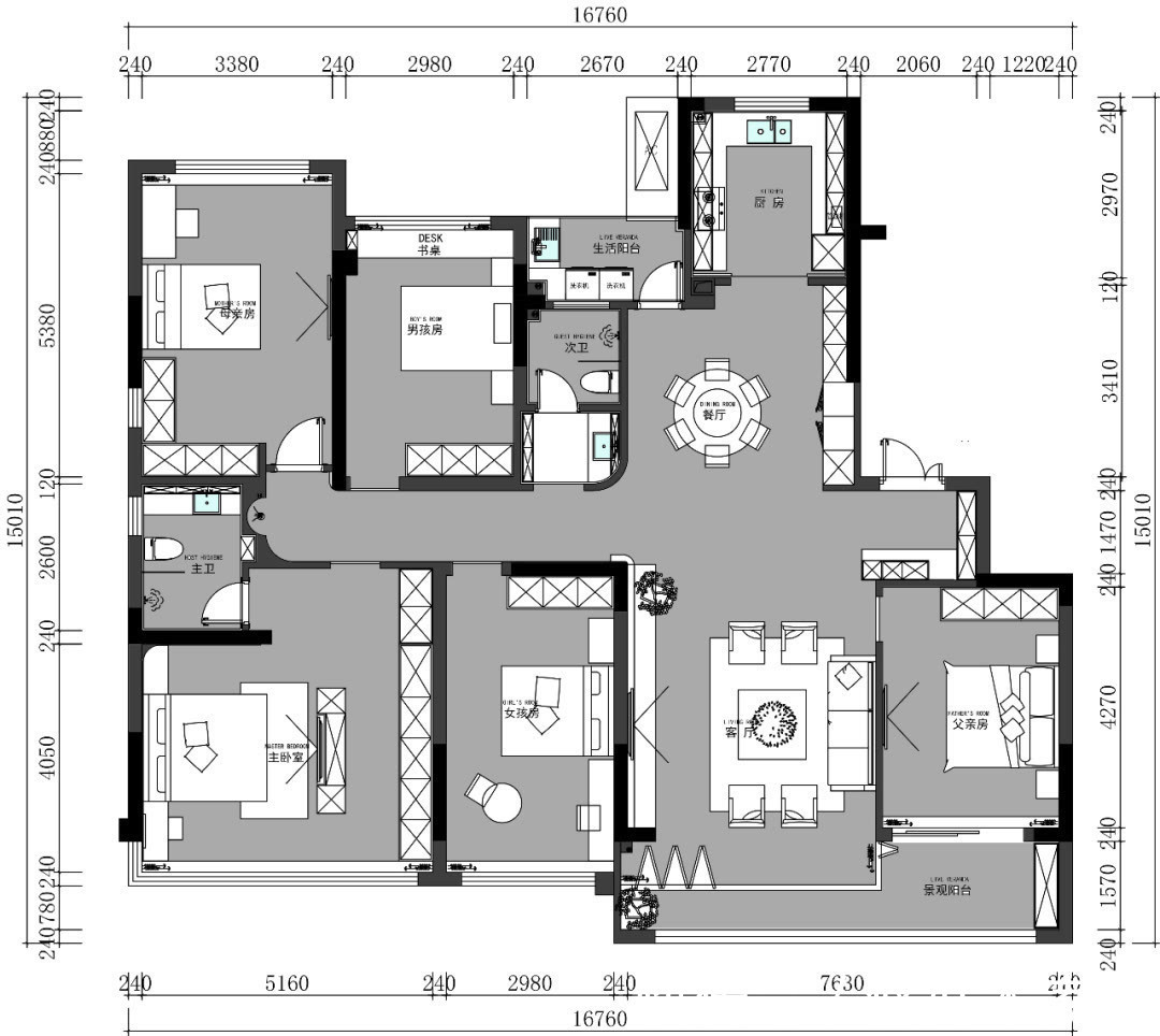
▇ 原始机构图
在硬装的基础上,本结合着隐藏梁的结构,将顶部跟梁结合处理为圆弧,将官帽的造型融入其中,展现出现代新中式气息,整个顶面空间圆滑且富有一抹高级的质感。
▇ 设计布局图
▇ 入户 / 院子空间设计
入户空间的鞋架与坐凳的完美结合,不仅将鞋子收纳得井井有条,方便家人和朋友坐下来轻松换鞋。入户左侧嵌入式镜子美观适用,在风水上起到添财行运的效果。
▇ 客厅 / 院子空间设计
客厅的色调明亮沉稳,现代简约元素,它能带给空间的纯粹,也是亲子互动区,这里更像一种温暖,治愈的生活仪式,业主家的两个小朋友实在太欢腾了,在这灵动的空间里可以欢脱的追逐嬉戏。

利用木饰面凹凸造型,实现次卧隐形门,简直的秩序感,增加了亲人间的交流。客厅到房间的过道———张扬主人的个性。

▇ 餐厅 / 院子空间设计
展示柜开放柜多角度展示,配有内嵌灯条,将珍藏已久的"收藏品"晒出,是爱的"范儿"

光线通过纱窗,每一步的影子,都会产生不同的感受。
【 重庆金融街融府|悠好木全屋定制设计实景案例 | 重庆】
收纳是为了方便的使用,顶天入地式餐边柜,为高效的针对餐厅日常用品进行了区分收纳,玻璃酒柜更添增浪漫情调。
▇ 厨房 / 院子空间设计
歺厅的黑白灰基调,加上餐椅木色的点缀,恰适配上我们的极简风格,深色的橱柜台面厚重耐看,厨柜的高度结合业主作了适当的安排)配置了洗碗机,蒸烤箱,净水器,管线机,功能齐全。
▇ 过道 / 院子空间设计


▇ 女儿房 / 院子空间设计
女孩房:粉色系与白色的搭配,简洁干净,高调的颜色衬托出女孩的优雅和柔美设计的目的是保持空间的灵动且个性,简约的线条感和纯粹的材料组合,利落的量体造型,强调了现代的生活美学。
推荐阅读
- 楼市|央行降息+官方喊话!重庆楼市现在还有多少人愿意入场?
- 北碚|重庆北碚高端别墅群,数量众多依山而建,满目疮痍好比世界末日
- 重庆|去年重庆商品住宅销售4945.42万平方米,同比增长2.7%
- 重庆|2022年重庆楼市第二周市场
- 综合实力|金科获重庆房地产开发企业50强榜首
- 天街|龙湖重庆公园天街开业 致力于焕新城市格局
- 拓普集团|拓普集团子公司以9021万元竞得重庆市沙坪坝区一土地使用权
- |快讯:蒋英波任重庆建联房地产开发有限公司董事长
- 重庆|重庆上彩置业因将建设工程肢解发包被罚1.35万元
- 重庆|又一个“恒大集团”!负债高达5000亿元,烂尾楼盘接连出现!
