磨砂玻璃|装修的时候,他大胆选择全屋白墙的设计,没想到效果也可以这么好
装修的时候,他大胆选择全屋白墙的设计,没想到效果也可以这么好新房装修的时候一般都会对墙壁进行一些装饰,让家里变得更加清新有设计感,不过今天的这位业主却是选择了全屋白墙的简约设计,整个房间都是简单的白色墙壁,硬装方面几乎没有任何多余的装饰,刚开始装修的时候家里的父母都不太认同这个设计,没想到装修之后的效果也可以这么好,全屋白墙也可以很有趣,到家里的朋友都很喜欢这个设计!房屋户型:三室房屋面积:65平方米装修预算:10到20万元所在城市:广州设计师:李文一主要建材:烤漆、清水模、铁件、实木贴皮、风化石、风管、石材
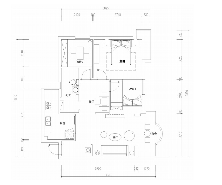
【户型图】原空间分析: 本户型为三房一厅,布局较为随意,功能区域不清晰,采光充足,风景视野好,地理位置优越,但装修风格相对陈旧。优化平面:入户门增加半通透造景玄关,电视墙增加屏风,使电视背景墙位置尺寸更舒适,阳台门取消,纳入至客厅空间使用,对客厅餐厅家具进行改造,次卧1、次卧2由原来的活动床改为榻榻米床以及多功能房间,提供使用率以及收纳性,主卧由原有1.5m床改为1.8m床,大大提高业主整体舒适度。
【玄关】设计亮点:磨砂玻璃隔断玄关和客厅之间设计了一个透明的磨砂玻璃作为隔断,既减少了空间上面的浪费也起到了空间分隔的作用,同时增强了室内的光线。实木的玄关柜主要是用来放置鲜花和摆件的,让人进门就能感受到业主对生活的用心。

【客厅】设计亮点:实木元素客厅使用了很多实木的元素,墙壁上还悬挂了一个年轮的艺术画来装点空间,实木的茶几和沙发都很文艺清新,房间内部的光线也很好,给人一种清新的舒适感。

设计亮点:阳台休息区客厅在靠近阳台的位置设计了一个休息区,实木的座椅和吊椅充满了自然气息,家里的窗帘也是选择了和实木相近的颜色,十分的大方舒适,清透的感觉让客厅看着就很开阔。
【厨房】设计亮点:白色橱柜厨房整体都是白色的设计,让小小的空间看起来更加的干净大方,大气的橱柜也可以放置很多的物品,厨房也选择了很多收纳的小物件,让台面变得更加整洁。

【餐厅】设计亮点:实木桌椅餐厅的位置本来是家里的过道,设计成餐厅之后让空间得到了充分的利用,也让用餐空间变得宽敞了一些。

【卧室】设计亮点:榻榻米床柜卧室选择了榻榻米的床柜设计,扩大了床铺的面积同时也增加了储物空间,让卧室更加的大方实用。

推荐阅读
- 装修|乔迁新房3月以泪洗面!当初的不理智,连犯15个极品装修坑!作孽
- 装修|淋浴房还可以坐着洗澡,一开始很不理解,装修后才发现太实用了!
- 施工者|不管家多大,装修时做好这12处细节,美观与舒适并存,幸福感提升
- 心塞|5个月装修一套房,硬装让我喜出望外,结果家具一上全废了!心塞
- 装修|空调外机万万不能这样挂墙,若不是师傅提醒,我家都装错了!
- 洗头|崩溃现场:装修的10条坑,我都替你踩扁了,请你一定要避开
- 抽油烟机|婆婆抠出新境界,5万装修婚房还带家电,如此寒酸真让人不想嫁了
- 房子|越来越多人用这“两个方法”装修房子,可升值十几万!
- 卫生间|房屋装修6大暗坑,哪个踩了都会导致返工,希望你没踩到。
- 木纹板|装修案例欣赏:小北欧风格的居家设计,简洁的同时又不失温馨感!
