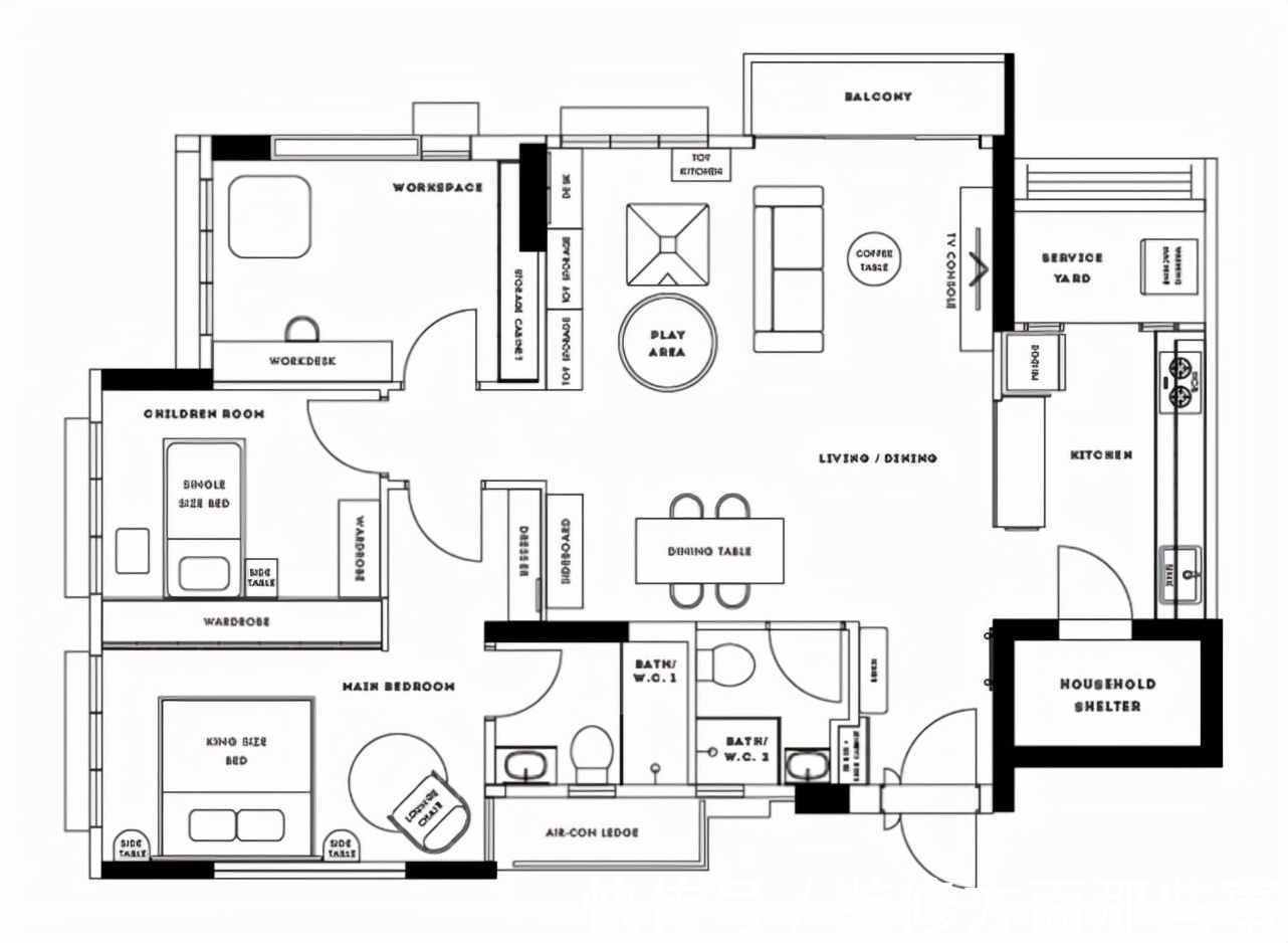
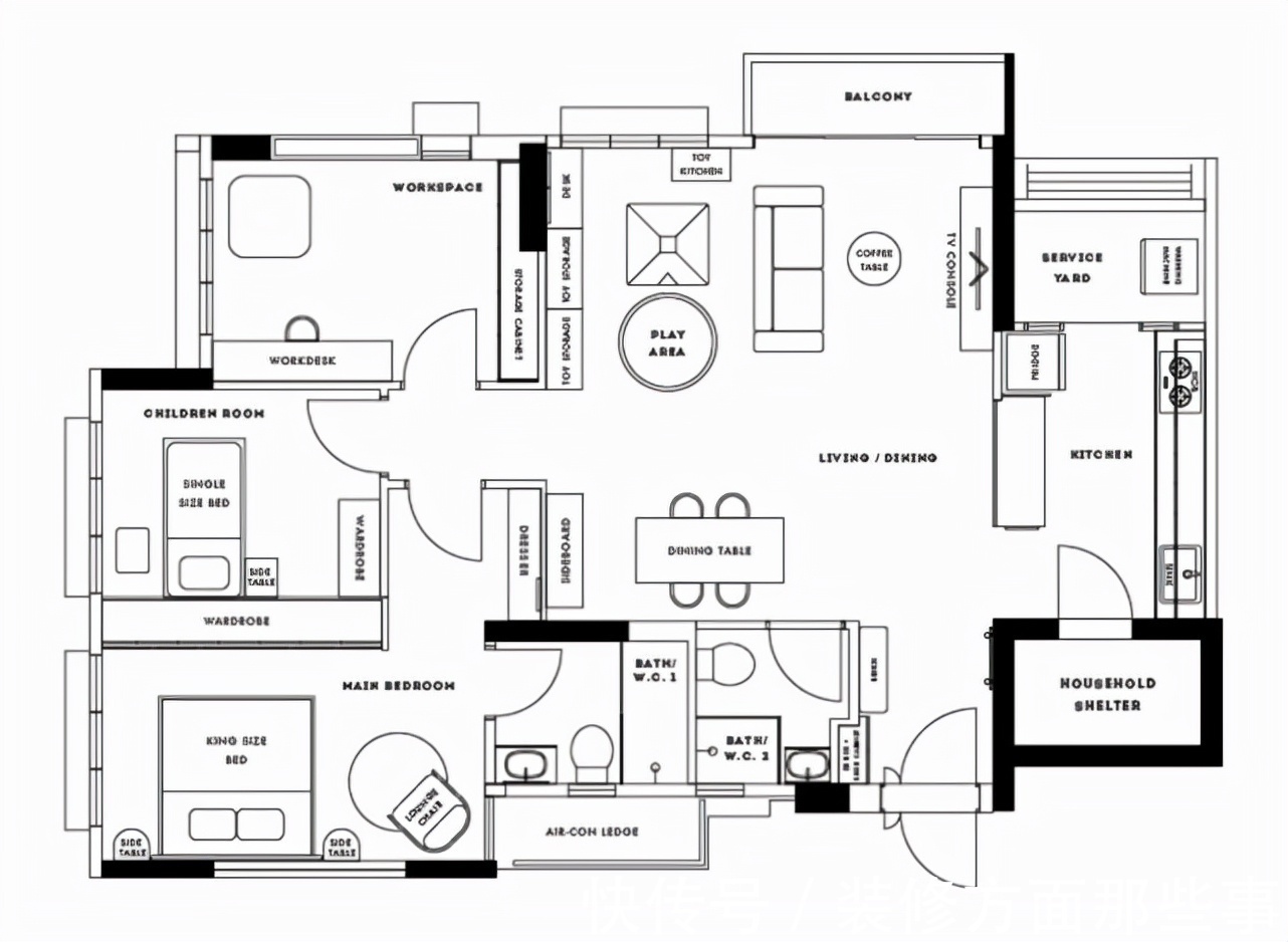
餐厅|96平 ?? 客厅和餐厅结合简单又简洁,还有一个孩简易游乐园( 二 )
?
阳台的一角绿色让开放式的阳台多大一点绿色让这个家多了一点绿色
作为迎宾的第一道关卡,整齐干净的玄关就显得非常重要。玄关的用色应避免暗沉,否则让空间显得死气沉沉,可以选择柔和色调,营造充满朝气与活力的居家氛围,还能带动好的气场产生。
?
?
入门处的小凳子方便了换鞋的方便墙上增加了小小的置物台
?
?
99平米的老房改造特别符合业主的要求和北欧特色
推荐阅读
- 客厅|参观向华强和陈岚的豪宅,房子层高太矮了,住着不压抑吗
- 卫生间|129平现代美式三居室,打造出一个舒适又温馨的美式家
- 三居室|118平现代风三居室,一个简单而纯粹还原生活色彩的家
- 郑州|买房月供曝光!郑州最新平均工资8694元,撑得起房贷么?
- 石家庄|144平的面积,无人值守棋牌室,这是如何做到的?
- 简单感|现实的平衡取舍,才是生活之道!143平现代风格设计欣赏!
- 她家148平米,进门就被玄关迷住,不做吊顶跟背景墙,阳台超漂亮
- 修建|精选10套三层户型图纸,占地面积均不足百平,尤其适合新农村修建
- 南通|拍卖成功!江苏南通一处197平住宅192万成交!
- 烤漆面|老公坚持餐厅不做柜子,原来用吊兰做隔断可以这么漂亮,学到了
