最流行|5套乡村小别墅, 10年后最流行的款式, 每一款都很美!
城里有房乡下有别墅
才是成功人士的标配没有动辄上千万的豪宅就回乡盖一栋乡村小别墅也能满足你的别墅梦
图纸编号:gg038
开间:11.4米
进深:10.8米
占地面积:123平方米
建筑面积:249平方米
结构类型:砖混结构
主体造价:32万



图纸编号:S104
开间:11.7米
进深:11.6米
占地面积:134.85平方米
建筑面积:207.44平方米
结构形式:砖混结构
土建造价:25万元
方方正正的两层小楼
在蓝天白云、葱葱绿树的掩映下
格外富有生活气息
大小面积适中
外观优雅漂亮
【 最流行|5套乡村小别墅, 10年后最流行的款式, 每一款都很美!】
图纸编号:S107
开间:13.7米
进深:12米
占地面积:164平方米
建筑面积:251平方米
建筑层数:2层
结构类型:砖混结构
主体造价:22万左右
多玻璃的运用让大自然与内部空间融为一体质朴温润的空间环境更和谐的是英式建筑语言与现代的氛围形成有效对话成为舒享简约、豁朗的艺术美家

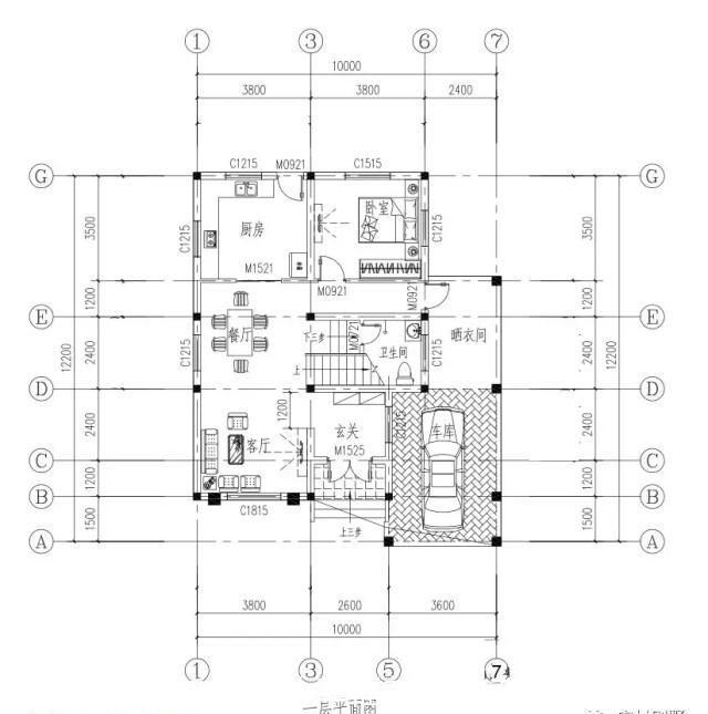
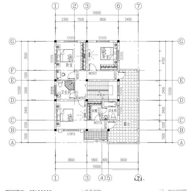
图纸编号:SF180908
开间:10米
进深:12.2米
占地面积:110平方米
建筑面积:168平方米
结构类型:砖混
主体造价:15-20万



图纸编号:YG340
开间:15米
进深:20米
占地面积:260平方米
建筑面积:350平方米
主体造价:62万左右
别墅素雅的配色
用朴素的材料重新定义了奢华
坡屋顶的设计洋气而实用
生活气息满满的小花园设计
足不出户给生活增添乐趣

推荐阅读
- |最高暴涨70万!宁波二手房市场即将回暖?
- |“最惨购房者”相关话题登热搜榜首,到底是怎么一回事?
- 上海市|上海今日10盘同日摇号,市区4盘日光!最高认购比392%
- 郑州|买房月供曝光!郑州最新平均工资8694元,撑得起房贷么?
- 三栋镇|最高8.48万/亩!要征115亩地!涉及三栋、河南岸!
- 增值税|距离朝鲜最近的民居,歌声都传过去了,看看是啥样?
- 契税|谢逸枫:2021年全国房价次首破万元 销售额创下35年历史最高纪录
- 亮点|等了6个月终于能晒晒新房了,都挺满意的,客厅是最大的亮点
- 征地补偿|征地补偿有调整!长沙最新征地补偿标准公布
- 烂尾楼|有3类房子,未来千万不要购买,内部人士透漏:未来最少贬值20%
