高级感|60平方米的小户型,这样改造也太漂亮了吧,充满高级感
60平方米的小户型,这样改造也太漂亮了吧,充满高级感
北京作为我国经济最为发达的城市之一,它的房价也是让很多人望而止步。在这个忙碌的大城市中能够拥有自己一片小的天地,就是一种幸福。面积不需要很大,我们对它进行合理的装修设计,也能成为我们温馨快乐的家。本期我们讲述的是一个在北京生活的三口之家所购买的60㎡温馨小家。房子虽然是小户型,但是对于他们一家的生活来说十分的合适,打扫起来也十分的方便。那么房子具体是怎样设计的呢,就让我们一起来看一下吧!
【 高级感|60平方米的小户型,这样改造也太漂亮了吧,充满高级感】案例:
北京小户型房子
居住成员
:大人、小孩
房屋面积:
60平方米
房屋类型:
二居室
空间格局:
2房1厅1卫
主要建材:
烤漆、实木皮板、乳胶漆
设计师:
郑昊鸿
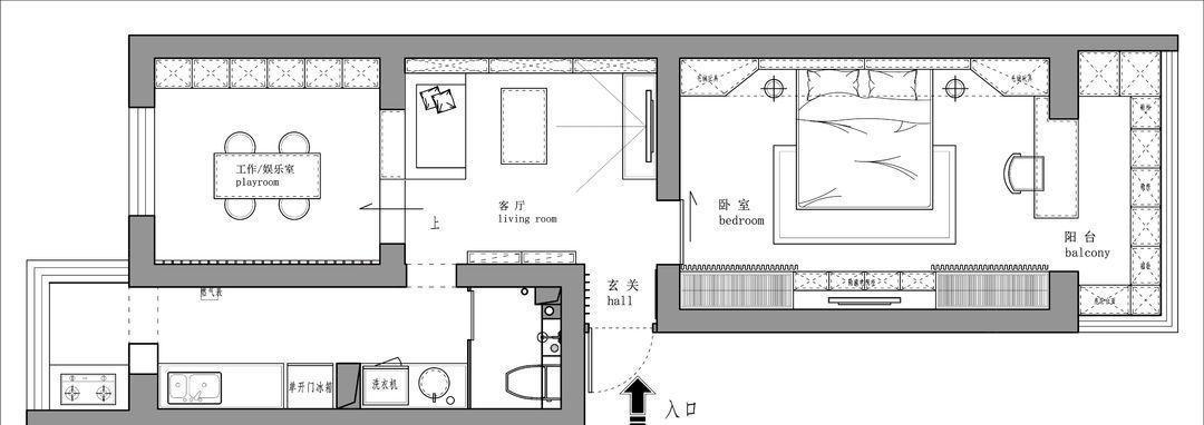
【户型图】
根据户型图来看我们可以看到房子的空间设计并不是十分合适,部分空间的采光线和设施有所缺陷。经过设计师的合理改造,将原本的南北三段式改造成了两段式,不仅解决了采光性问题,而且增加了视觉的通透和饱和性。原本卧室的储存功能并不是很好,为了更加的节省空间,将卧室的储存位与背景墙设为了一体,不仅使用上更方便,而且更加的节省空间和面积。综合来看整体设计要改造颜色搭配;空间分布都十分的简约合适,很适合三口之家的生活。
【玄关】

设计重点:
收纳装置
走进家门我们就可以发现玄关设计以简约舒适为主,各项物品摆放得十分整齐, 将原本狭小的空间利用到了极致。 墙上挂着着精致的挂钩,把包包, 钥匙等放在这上面,十分的合适,再往前走是一个小型的收纳柜,空间虽然小,但是能够容纳很多的东西。实用的超薄穿衣镜方了居住者在出门前后检查自己的着装是否的搭配合适。
【客厅】

设计重点:
黄色背景
不同于一般的小户型房子客厅设计,这套房子的客厅布置十分有动画和艺术气息,整体都透露着一种童真与浪漫。装修风格以黄色为基调,颜色鲜艳明亮,带给人视觉上的饱和感和冲击感。黄色和灰色的背景墙,黄色的沙发、茶几和地毯,处处都流露着他们对生活的热爱。 为了更好地助力孩子成长,女主人购买了很多的玩具,处处我们都可以看到一些动漫人物的身影。收纳柜布置得也十分合理,分为上中下三层。 既方便收纳玩具, 而且看上去也更加的整齐。
【餐厨区】

设计重点
:跳色手法
餐厅充满了满满的现代气息,处处都流露着满满的想象力。餐厅与客厅以一个球衣形状的帘子隔开。里面的布置主要分为上中下三层,白色的背景墙清新淡雅,十分易于清洁。白色的 大理石做饭区干净整洁,在这里做一顿美美的饭菜,心情也是十分快乐的。设计师合理的利用了黑白色,红色,黑色等几种颜色,明系颜色合理的融入到一些黑白色调中,既给人一种高级质感,又带给人一种家庭的淳朴。
推荐阅读
- 现代风|168㎡现代风,带着浓郁的归属感与愉悦感
- 施工者|不管家多大,装修时做好这12处细节,美观与舒适并存,幸福感提升
- 混淆感|146㎡北欧经典白色三居室,诠释令人心醉的优雅
- 灰尘|家中阳台不要装推拉门了,装这种更实用个性,不得不感叹太聪明了
- 简单感|现实的平衡取舍,才是生活之道!143平现代风格设计欣赏!
- 木纹板|装修案例欣赏:小北欧风格的居家设计,简洁的同时又不失温馨感!
- 香港|好住 全新体验!住在景区里是什么样的感受?
- 全屋|164m2现代简约全屋简洁大方,有质感!
- |远嫁3000公里,看到农村婆家给我准备的婚房,我感觉我快要哭了
- 阳台|发现一户很有品味的中式样板房,两层复式楼,格局好,装修很高级
