背景墙|15万装修110平三房,黑白灰经典配色,打造现代新居室
齐家小灵儿今天分享的这套建面110平米的三居室,采用了现代风格设计,装修费用15万左右。黑与白,冷与暖,强烈的对比,搭配简约而不简单的家具和装饰,碰撞出干净纯粹的现代新居室。
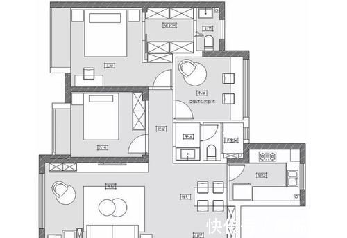
▲ 平面布置图
餐 厅
▲ 进门就是餐厅,所以玄关自然而然的就与餐厅结合在了一起。餐桌旁边的餐边柜,刚好也可以腾出一部分空间当鞋柜使用。
▲ 一体式客餐厅,全黑的背景墙营造出简约硬朗之感,水泥灰的地面则零星的分布着一些黑白灰三色六角砖,给室内空间增加了一些趣味性。
客 厅
▲ 打通阳台,与客厅合并到了一起,但是阳台区域的左侧还是保留了洗衣机的位置。
▲ 纯黑色的沙发背景墙,搭配上黑色的皮质沙发,再融入一些白底装饰画,木质家具,以及简约落地灯,时尚大气中又多了几分温馨与自然。
▲ 洗衣机与客厅中间,做了个收纳柜隔断,这样的设计,既不影响室内采光,同时也增加了家里的储物空间。
【 背景墙|15万装修110平三房,黑白灰经典配色,打造现代新居室】
▲ 阳台被纳入到了客厅,所以电视墙也大了很多,可以做的造型设计也多了很多。这不,靠近窗户那边,就做了个悬挑装饰柜,搭配下面的地柜,层次感突显。
▲ 从这个角度可以看到餐厅和厨房。厨房门不大,黑框玻璃造型,既可以隔绝油烟,又不会影响光线通透。
厨 房
▲ 厨房深度虽然很浅,但好在可以设计成U型布局,刚好一面一个功能区,备菜、洗菜、烹饪,互不影响。
主 卧
▲ 主卧室在色彩搭配上延续了客餐厅的黑白灰格调,床头背景墙挂一幅婚纱照,超温馨超浪漫的。另外,推开旁边的白色谷仓门,可以通向衣帽间和卫生间。
▲ 衣帽间连着主卫,过道两边相对的两排大衣柜,满足日常衣物收纳。
书 房
▲ 书房,人字铺木地板搭配留白墙面,半开放式柜体可以收纳书籍,也可以用来摆放收藏品和装饰物。
卫 生 间
▲ 客卫的干湿区是直接分开的,这样的设计可以提高使用效率。
齐家小灵儿提供更多装修资讯,喜欢我的朋友记得收藏和关注哦!
(素材来源于网络,无法核实真实出处,如有侵权,请直接联系齐家小编删除。谢谢!)
推荐阅读
- 装修|乔迁新房3月以泪洗面!当初的不理智,连犯15个极品装修坑!作孽
- 装修|淋浴房还可以坐着洗澡,一开始很不理解,装修后才发现太实用了!
- 施工者|不管家多大,装修时做好这12处细节,美观与舒适并存,幸福感提升
- 心塞|5个月装修一套房,硬装让我喜出望外,结果家具一上全废了!心塞
- 背景墙|97㎡现代风,以时尚打造空间,以新颖突出特点
- 装修|空调外机万万不能这样挂墙,若不是师傅提醒,我家都装错了!
- 洗头|崩溃现场:装修的10条坑,我都替你踩扁了,请你一定要避开
- 抽油烟机|婆婆抠出新境界,5万装修婚房还带家电,如此寒酸真让人不想嫁了
- 她家148平米,进门就被玄关迷住,不做吊顶跟背景墙,阳台超漂亮
- 房子|越来越多人用这“两个方法”装修房子,可升值十几万!
