亚光砖|89平借用厨房空间将干区移到卫生间外,将电视墙改为柜子隔断( 二 )

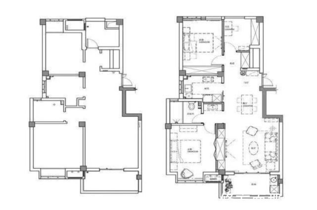
【 亚光砖|89平借用厨房空间将干区移到卫生间外,将电视墙改为柜子隔断】【户型图】借用厨房部分面积,将干区移到卫生间外;利用柱子间厚度,将整面电视墙改为柜子隔断。
推荐阅读
- 大悦城|家里这两个地方别漏了贴瓷砖,许多人为了省钱,入住就后悔了
- 卫生间|129平现代美式三居室,打造出一个舒适又温馨的美式家
- 三居室|118平现代风三居室,一个简单而纯粹还原生活色彩的家
- 郑州|买房月供曝光!郑州最新平均工资8694元,撑得起房贷么?
- 石家庄|144平的面积,无人值守棋牌室,这是如何做到的?
- 简单感|现实的平衡取舍,才是生活之道!143平现代风格设计欣赏!
- 她家148平米,进门就被玄关迷住,不做吊顶跟背景墙,阳台超漂亮
- 修建|精选10套三层户型图纸,占地面积均不足百平,尤其适合新农村修建
- 南通|拍卖成功!江苏南通一处197平住宅192万成交!
- 瓷砖|远嫁十年回娘家,走到家门口房子已经旧貌换新颜了,都快不认识了
