装修|参观邻居的60平小两居,进门就被迷住了,现代简约风装修超温馨!
参观邻居的60平小两居,进门就被迷住了,现代简约风装修超温馨!
前几天一位老邻居新房入住,邀请我到他家去串门,毕竟好久没见面,想坐在一起聊聊天,我正好有时间,就答应了,同时也想看看他家的装修。
我们原来是住在同一个老旧小区的邻居,房子拆迁后经过一年的重建,有缘回迁房又分到一起,大家彼此熟悉,见面十分热情,所以我也不见外。当我来到他家时,一进门就被他家的装修给迷住了,小屋太舒适温馨了!他家是60平米的小两居户型,采用现代简约风格装修,十分简洁舒适,据说才花5万多元装修,真让我很意外,这性价比也太高了吧!
【 装修|参观邻居的60平小两居,进门就被迷住了,现代简约风装修超温馨!】
入户玄关
从入户门进来,在左侧门后靠墙定做一排玄关鞋柜,中间镂空区安装了一面镜子,方便出门前整理仪表,顶部是吊柜,鞋柜旁放置了洗衣机,因对面的卫生间较小,因此放在玄关处,不但让卫生间更宽敞,也提高了让玄关空间的利用率,非常实用方便。
客厅
从玄关走廊进来就是客厅的位置,原木色地板一白色墙面搭配整洁舒适明亮清新。客厅内摆放一个米色布艺沙发,上面放着明黄色和灰色小抱枕,与前面的长方形晶莹的小茶几及精美的插花搭配,在灰色调条纹壁纸背景墙衬托下,时尚端庄大气中不失活泼灵动。
对面的电视背景墙上是一台宽大的电视,底部圆弧造型的悬空式白色实木电视柜优雅时尚,上面摆放的小饰品提升空间艺术氛围。
餐厅
客厅里侧是餐厅的位置,客餐厅在同一空间内,通过造型棚做区域分隔,保持视觉通透,明亮宽敞。餐厅内靠墙摆放一个长方形实木餐桌,搭配两把小餐椅,背景墙上是一排艳丽的花卉图案挂画,营造出温馨活泼的用餐氛围。
餐厅后侧定做了一面到顶的餐边柜,兼具酒柜、书柜的储物和展示功能,非常时尚气派实用,平时坐在餐厅阅读或工作非常明亮安静舒适。
厨房
旁边的白色实木边框玻璃门内是厨房的位置,定做了空间利用率超高、动线流畅、储物空间巨大的U字型实木橱柜和电器高柜,非常整洁明亮,将厨房物品归纳得井井有条。
主卧
主卧内洁白的墙面搭配铺着咖色床品的舒适大床,在暖色光源照射下,营造出优雅舒适温馨的睡眠氛围。左侧墙面定做一个磨砂玻璃柜门的大衣柜,很有现代感,底部藏光设计立体而有层次感。右侧还摆放一个简约式工作台,搭配电脑和舒适的橘黄色舒适座椅,为邻居夫妻提供一个独立安静的工作空间。
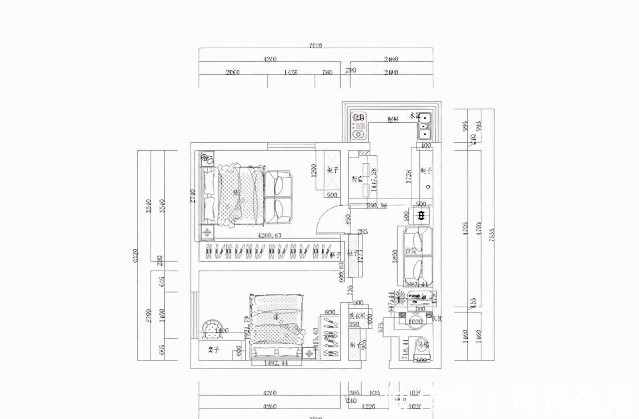
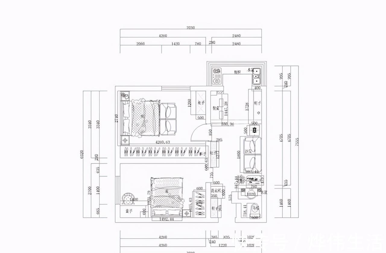
平面布置图
次卧暂做书房兼客卧,定制的榻榻米一体家具还没完全到位,就不给大家分享了。总之,邻居的现代简约风小家小编是真的很喜欢,花钱不多效果超好,舒适温馨,不知大家释放也喜欢呢?
推荐阅读
- 装修|乔迁新房3月以泪洗面!当初的不理智,连犯15个极品装修坑!作孽
- 装修|淋浴房还可以坐着洗澡,一开始很不理解,装修后才发现太实用了!
- 施工者|不管家多大,装修时做好这12处细节,美观与舒适并存,幸福感提升
- 心塞|5个月装修一套房,硬装让我喜出望外,结果家具一上全废了!心塞
- 客厅|参观向华强和陈岚的豪宅,房子层高太矮了,住着不压抑吗
- 装修|空调外机万万不能这样挂墙,若不是师傅提醒,我家都装错了!
- 洗头|崩溃现场:装修的10条坑,我都替你踩扁了,请你一定要避开
- 抽油烟机|婆婆抠出新境界,5万装修婚房还带家电,如此寒酸真让人不想嫁了
- 收纳|去邻居家参观才知道,卫生间不装柜子这样设计,防潮耐脏好清洁
- 小房间|参观140㎡大婚房,朋友都夸餐边柜有档次,我却更喜欢主卧的飘窗
