餐边柜|91平后现代风以黑白灰为色调,玄关处用矮柜做鞋柜也可储物
这个用的是后现代风格,以黑白灰为色调,玄关处用矮柜做鞋柜,在上面放一些装饰品,使家里看起来很美观,另外餐边柜在满足储物的同时放摆件看起来很美观
客厅是我们家里休闲的功能区,对于客厅的家具,小编建议大家不要过多,要留出足够的空间方便我们活动,沙发要选择合适的尺寸,不要多大或者过小,根据你家的客厅面积进行选择。
客厅用大理石做背景墙,看起来很高大,整体效果还是不错的
卧室是休息区,在装修里面属于家庭当中安静的角落,所以该部分装修主要塑造一种静谧的氛围。一张床靠墙而放,再配上衣柜和窗帘就很完美了。
卧室用白灰色调为主打,黑色点缀设计的既好,简单大气
餐桌的选择需求注意与空间大小配合,小空间配大餐桌或者大空间配小餐桌都是不合适的,因为购买的实质问题,业主很难把东西拿到现场开展比较,因此,在餐厅装修的时候先测量好所喜好的餐桌尺寸后,拿到现场做比较,可避开过大过小。
餐厅边的餐边柜,在满足储物的同时,还可以放一些摆件,显得更美观
玄关最重要的功能就是隔断客厅和进门处的空间,让人进门时的第一视线不能马上看到客厅,从而起到保护隐私的作用。如果是软隔断的话,可用不同色块来划分空间功能,或者是用珠帘,布帘这类装饰来分隔也有一样的效果。
【 餐边柜|91平后现代风以黑白灰为色调,玄关处用矮柜做鞋柜也可储物】玄关用矮柜做鞋柜,上面可以放摆件,使整体很美观
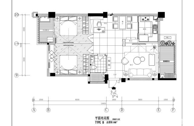
这个是两室两厅一卫的户型图
推荐阅读
- 餐边柜要做成什么样子才实用又好看看看这几款餐边柜设计
- 卫生间|129平现代美式三居室,打造出一个舒适又温馨的美式家
- 三居室|118平现代风三居室,一个简单而纯粹还原生活色彩的家
- 郑州|买房月供曝光!郑州最新平均工资8694元,撑得起房贷么?
- 石家庄|144平的面积,无人值守棋牌室,这是如何做到的?
- 小房间|参观140㎡大婚房,朋友都夸餐边柜有档次,我却更喜欢主卧的飘窗
- 简单感|现实的平衡取舍,才是生活之道!143平现代风格设计欣赏!
- 她家148平米,进门就被玄关迷住,不做吊顶跟背景墙,阳台超漂亮
- 修建|精选10套三层户型图纸,占地面积均不足百平,尤其适合新农村修建
- 南通|拍卖成功!江苏南通一处197平住宅192万成交!
