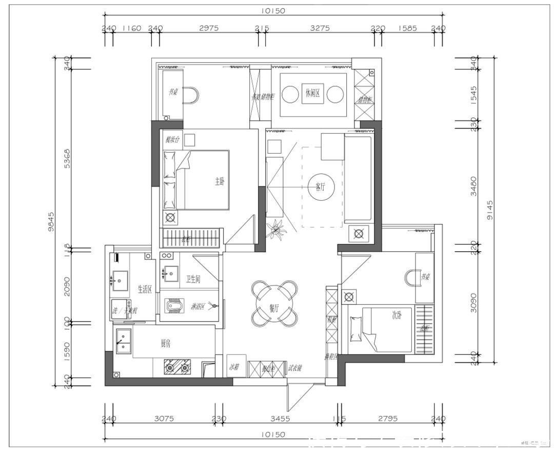
恋人|116平现代风四居室,一个有恋人感觉的温暖的家
一场叙说关于爱情的豫章即将开始.......此案列没有做过多的改造,也没有做更多的花俏设计手法,只想做出适合有恋人感觉的温暖的家!工作累了,回家看见爱人在厨房做着可口的饭菜,生活久了,还能像恋人一样,聊着过去和未来。设计师能提供的只是空间,而空间的温暖需要居住着共同打造
客厅装修最重要的是采光和室内布局。客厅装修不仅要有充足的采光和亮眼的墙壁,而且还要有巧妙的空间布局。
一场叙说关于爱情的豫章即将开始.....
只想做出适合有恋人感觉的温暖的家
卧室应该是一个安静的、温馨的场所,从选材、色彩、室内灯光布局到室内物件的摆设都要经过精心设计。
.此案列没有做过多的改造,也没有做更多的花俏设计手法
【 恋人|116平现代风四居室,一个有恋人感觉的温暖的家】厨房的装修也是一样的,是要看你家的饮食习惯,是偏中式还是偏西式,这里的区分不是灯光而是油烟的问题,中式比较油腻一些,所以吸油烟要选择吸力大的,橱柜和橱柜的台面要选择容易打理的。水槽也要选择质量好一点的,这样使用的寿命就会长一些。
空间的温暖需要居住着共同打造
夏天的风暖暖的夏天的风暖暖的
推荐阅读
- 卫生间|129平现代美式三居室,打造出一个舒适又温馨的美式家
- 三居室|118平现代风三居室,一个简单而纯粹还原生活色彩的家
- 郑州|买房月供曝光!郑州最新平均工资8694元,撑得起房贷么?
- 石家庄|144平的面积,无人值守棋牌室,这是如何做到的?
- 简单感|现实的平衡取舍,才是生活之道!143平现代风格设计欣赏!
- 她家148平米,进门就被玄关迷住,不做吊顶跟背景墙,阳台超漂亮
- 修建|精选10套三层户型图纸,占地面积均不足百平,尤其适合新农村修建
- 南通|拍卖成功!江苏南通一处197平住宅192万成交!
- 购房置业|农村建新房就选这套四层别墅,占地100多平,8间卧室人人都有地睡
- 现代简约|青岛房价不是低洼地了,房价高达1.6万一平
