中式|这对夫妻俩装修思想前卫,全屋新中式混搭风格,效果让人羡慕极了
【 中式|这对夫妻俩装修思想前卫,全屋新中式混搭风格,效果让人羡慕极了】喜爱与生活相结合,把美好用另一种方式装进触手可及的空间里面,本案业主也正是如此,喜欢中国的传统文化,但又想和现代装修风格结合在一起,不拘泥于某一种风格,觉得自己喜欢的就是最好的风格。
本案介绍的是一套新中式混搭风格,以暖白色为主色调,不仅展现出中式的传统艺术文化,又有现代的快节奏生活感,在和业主的共同努力下,营造出了一个幸福浪漫的家庭氛围,深得业主两口子的喜欢。
设计简介:
装修风格:新中式混搭风格
实际面积:143平米
空间格局:四室两厅
设计师:清泉石设计
项目位置:广西省玉林市
装修造价:预算35W
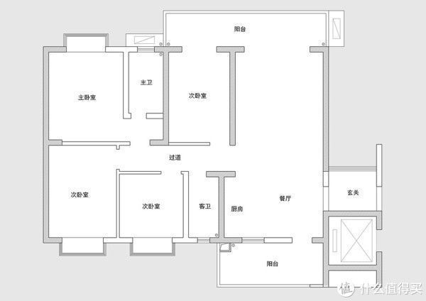
01原始户型图
第一次看到这个户型的时候,就觉得这个户型很周正,利用率很高,而且每个空间规划合理,南北通透的效果非常好,伴随着众多的有点,它也有一些缺点,那就是餐厅和厨房空间太小了,图中所表示的客卫空间,也比较窄,利用率不是很好。
02平面布置图
这是一个六口之家,所以卧室必须保留四间,业主是一儿一女非常幸福的一家子。取消了原来的厨房空间,全部纳入为餐厅,让餐厅变得非常宽敞。原来餐厅旁边的阳台,规划成整个厨房空间,厨房就变得大一些了。缩小了女孩房的面积,占用一部分纳入到主卧室里面做衣帽间,增加了主卧室的功能。原来的客厅阳台划分为两个区域,一个生活区一个休闲区。
03玄关

“月有阴晴圆缺”进门就能感受到中式的方圆之风,还有些复古的美,大门的右手边墙面有窗户,所以鞋柜没有做到顶,刚好做平齐窗户位置,这样既保证了收纳,又保证了空间的采光效果,一举两得给玄关空间增添了舒适感。
04餐厅


从玄关过来,便来到了餐厅空间,现在的餐厅位置,是原始结构图里面餐厅和厨房的结合,所以空间还是挺大的,舒适感很好。因为空间比较宽敞所以摆放圆桌还是挺合适的,空间看上去也挺饱满的,刚好也和顶面的圆形吊顶相呼应,营造出了一个方圆的中式美。
05厨房

厨房是之前的阳台空间,所以采光效果还是挺好的,为了让餐厅有多的采光效果,有一部分墙体没有选择封到顶,这样传菜也很方便。烹饪方式选择集成灶节省了橱柜面积,而且效果也还可以。
06客厅

推荐阅读
- 饱和度|173㎡轻奢新中式,古典和现代的碰撞,唯美浪漫!
- 灵魂深处|全屋定制案例|儒雅新中式,展现灵魂深处的东方情怀
- |73㎡复古风两居室,年轻夫妻的高品质生活
- |中式庭院,这才是最让我们心动的院子
- 购房置业|夫妻俩大胆改造老房,坚持把3房改为1房,过于舒适了
- 传统|189平现移步换景,以景造景打造富有传统韵味的新中式设计
- 搬家公司|乡住免费图纸土建造价参考88万面宽15.5m 进深14.4m 三层新中式别墅
- 造价|乡住土建造价参考81.2万,面宽13.4m×进深11.9m 三层新中式风格别墅
- 户型|北漂夫妻买下24㎡婚房,柱子4米宽,窗台就占户型面积一半
- 名字|房产证上最好不要写夫妻两个人的名字,以前不懂,现在知道也不晚
