人工吊顶|125平米的房子装修只花了11万,美式风格让人眼前一亮
如今,生活节奏越来越快,很多人的时间就是金钱,根本没有空余时间。装修的时候更是顾不上,很多人会选择的装修方式,你知道装修注意哪些细节么?今天小编就为大家介绍一下四居室装修,才花了11万的相关案例。
考虑到屋主喜好,设计师选择了浅色作为公共空间主色调,去除浮夸的装饰营造素雅清新的感觉,而美式韵味则被运用于软装家具中,自然不刻意。屋主偏好被藏于细节之中,设计感及需求也完美融合于新家,为屋主打造既实用又有腔调的婚房。
【 人工吊顶|125平米的房子装修只花了11万,美式风格让人眼前一亮】客厅是最主要的公共活动空间,不管是否做人工吊顶,都必须确保空间的高度性。另外,还要确保客厅从任何角度看都有美感。
浅色背景透露出素雅的味道,金属线条驱走单调感,灯具及背景墙装饰也低调凸显精致气息。
软装上设计师选择具有美式韵味的家具强化风格,深色茶几、电视柜配合窗帘丰富空间层次。
为什么现在卧室不吊顶了?现在很多人在装修卧室的时候都简单处理,一方面节省了预算,一方面减少了卫生死角,卧室回归本来的用图,让人安心睡眠。那些华而不实的装饰就慢慢退出装修舞台了。
主卧相较于公共空间则更带有屋主的个人味道,特调的色彩为卧室注入“灵魂”,搭配白色让空间气质得到升华。
次卧与客厅保持统一,素色更易放松空间主人情绪,少许的亮黄色在浅色空间里格外亮眼,活跃整体氛围。
卫生间由于空气潮湿,很容易滋生细菌。所以选择有窗户的明卫最好。如果是暗卫,为了防止卫生间发霉,除了装一个功率大,性能好的排气换气扇外,还要注意避免“包裹”,尤其是在临近地面的地方。
洗手间采用干湿分离处理,洗手台下面做柜子增加一点储物空间。
家中的装修,最看重的要数厨房了,拥有一个精心设计、装修合理的厨房会让你变得轻松愉快。厨房装修首先要注重它的功能性。要打造温馨合理的厨房才是王道!
厨房也是浅色的世界,给人洁净的感觉,U型设计合理利用空间,也让女主人的厨艺得到最佳发挥。
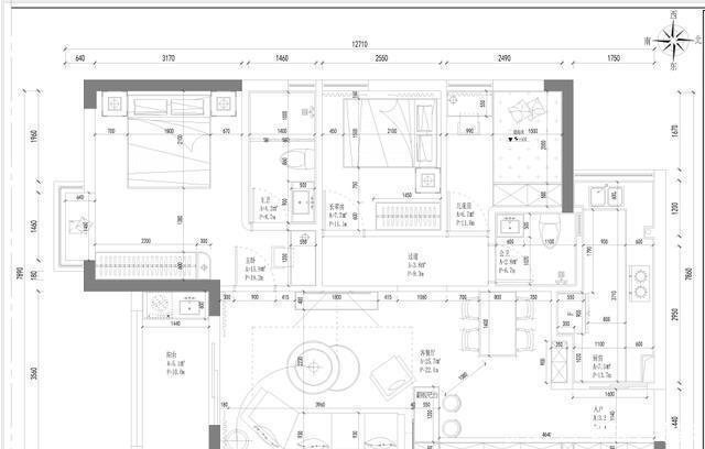
以下就是本套中粮凤凰里小区125平米四居室房子的户型图。
中粮凤凰里4室2厅户型图
每个人对装修都有自己的见解,装修的时候总考虑需要注意什么,怕装修走了弯路。如果有11万的装修预算,在面对125平米的四居室时要如何装修呢?这套装修案例的业主用自家的美式风装修效果图做了最好的答案,如果你也喜欢的话,欢迎转发评论来一波。
推荐阅读
- 她家148平米,进门就被玄关迷住,不做吊顶跟背景墙,阳台超漂亮
- 吊顶|两米八以下的层高千万别吊顶,学学我家的装修,时尚美观还省钱
- 乳胶漆|等买了房,就照他家这么装,全屋不吊顶,不做背景墙,越看越耐看
- 长方形|28万打造159㎡法式风情洋房,光吊顶就3万多,开放式厨房超有情调
- 人工费|越来越多的人不把电线埋在地里了,现在流行这样弄,省钱又实用
- 复古|媳妇坚持不做吊顶,完工反而更大气,简美风越住越耐看!晒晒全屋
- 吊顶|装修水分有多大最爱“坑”你血汗钱的6个地方,真是等着你上钩
- 吊顶|装修了2套房子才发现,这些地方根本不用做,鸡肋又浪费钱!
- 吊顶|这些自欺欺人的装修“鬼话”,相信了你就会上当,钱也打水漂了
- 吊顶|关于家装设计的20个建议,入住就知道多暖心,细节处尽显人性化
