中式|精选8套中式别墅这才是新农村自建房该有的样子,谁不心动
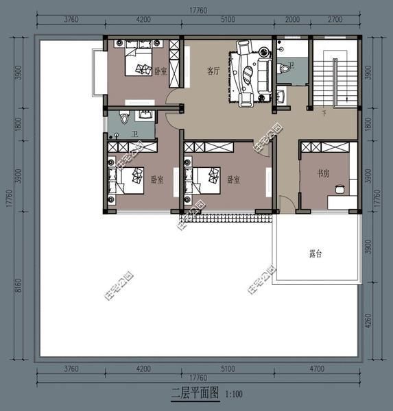
第1套:最简洁的中式小院,无需豪华的装饰,为家人带来方便舒适的生活,便足以。
占地尺寸:17.7m*17.7m占地面积(不含庭院):159.3㎡建筑面积(不含庭院):308㎡总高度:9.1m建筑情况:共设5室3厅4卫1厨1堂屋1书房2储藏间1露台1庭院

第2套:沉稳低调的建筑配色,不夺目不亮眼,像中国人一样富有内敛的艺术气息。
占地尺寸:14.3m*10.8m占地面积:141㎡建筑面积:318㎡总高度:10.4m建筑情况:共设6室2厅3卫1厨1玄关1储藏间1起居室1活动室1阳台1露台1车库

第3套:没有充裕的宅基地和预算建中式小院,我们可以修建一栋新中式风格的楼房,同样充满简朴素雅的情调。
【 中式|精选8套中式别墅这才是新农村自建房该有的样子,谁不心动】占地尺寸:8m*16m占地面积:123㎡建筑面积:344㎡建筑高度:10.2m建筑情况:共设7卧室1客厅1开放式厨房1餐厅6卫3起居室1露台


第4套:没有采用传统中式精致的木雕,加以玻璃围栏的现代时尚元素,整体看起来宜居,适合新农村人修建。
占地尺寸:15m*14m占地面积:122.5㎡(不含庭院)建筑面积:235.6㎡建筑情况:共设4室2厅5卫1厨房1堂屋1洗衣房1书房1阳台1储藏室

第5套:灰瓦白墙,结合现代住宅的大阳台、露台,营造出一种简朴舒适的农村生活。
占地尺寸:15.1m*9m占地面积:124.7㎡建筑面积:212.4㎡建筑高度:9m建筑情况:共设6室2厅4卫1厨1阳台1露台

第6套:建筑面宽仅7米,占地70多平,满足了那些小宅基地家庭的建房需求,允许的前提下,再加上小院,那便是锦上添花了。
占地尺寸(不含庭院):7.3m*10.2m占地面积(不含庭院):76.4㎡建筑面积(不含庭院):217.3㎡建筑高度:13.1m建筑情况:共设4室3厅3卫1厨1玄关1阳台1露台
推荐阅读
- 饱和度|173㎡轻奢新中式,古典和现代的碰撞,唯美浪漫!
- 修建|精选10套三层户型图纸,占地面积均不足百平,尤其适合新农村修建
- 灵魂深处|全屋定制案例|儒雅新中式,展现灵魂深处的东方情怀
- |中式庭院,这才是最让我们心动的院子
- 传统|189平现移步换景,以景造景打造富有传统韵味的新中式设计
- 搬家公司|乡住免费图纸土建造价参考88万面宽15.5m 进深14.4m 三层新中式别墅
- 造价|乡住土建造价参考81.2万,面宽13.4m×进深11.9m 三层新中式风格别墅
- 案例|玩转庭院:11个“中式庭院”设计案例,院子这样造几十年不落伍
- 装修风|被亲戚嘲讽的中式装修风,装修完工后,亲戚:可以常去你家看看么
- 海口|1718套,2022年伊始,海口已有6个商品房项目获得预售,住宅750套!
