屋主|大龄姑娘买下33㎡小宅,全屋极简装修,卧室抬高45㎝,好舒适
文案编辑:老曾家二姑娘随着社会的不断发展,年轻的姑娘们独立意识越来越强了,她们更愿意花时间丰富自己的知识、打拼自己的事业——于是忙着忙着,就变成30多数的大龄姑娘了。随着年龄的增长,思想也越来越成熟了,因此单身姑娘们的购房意愿也随之增加;大部分的单身姑娘们会选择一套小户型作为自己稳定的居所,即提高了生活质量,购买小户型经济压力也不大,面积小也好打扫卫生,关键是一个人住面积小也更有安全感。
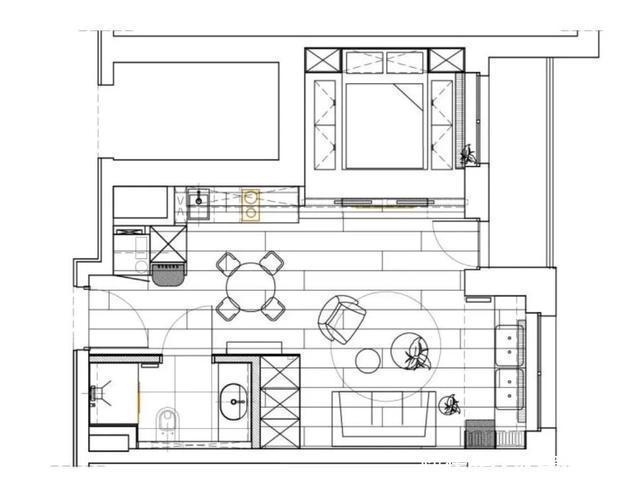
一位80后台北姑娘,通过自己打拼就在工作的城市买下了一套33㎡的小宅;选择全屋极简装修、卧室抬高45㎝,一个人居住好温馨好舒适了。那么她家到底是一个怎么样的家居场景呢?不要走开,下面我们一起来看看吧!户型为了更直观地了解全屋,我们先来看一看户型布局图,这样看起来更通俗易懂,喜欢的朋友借鉴起来也一目了然。
房子属于公寓房,没有独立的厨房,因此客餐厅与厨房形成敞开式格局,卧室面积不到8㎡,较为紧凑。下面是室内装修细节讲解,为什么要这样装,这样装的目的是什么,我会给大家一一分析~玄关与餐厨区域进门玄关处,原本可设计鞋柜的空间其实是非常小的。

在这里设计师利用厨房落水管道与玄关的“平行”落差,通过90度转角的设计手法打造了玄关收纳区与厨房高柜相结合,烤箱以及迷你冰箱均嵌入高柜内。这种设计师手法不仅增加了玄关的收纳功能,家电选择嵌入式空间整体感更强、也避免了卫生死角的形成。
温馨提示:嵌入式电器虽美观,但是大家在借鉴时不仅需要挑选嵌入式的款式,还需要在上下或是左右预留好散热透气孔哈!
餐桌紧挨橱柜,圆形细腿餐桌搭配圆形细线吊灯,这里是屋主用餐的区域、也是屋主的书桌。
与卫生间的隔断墙上满铺木饰面板,细线条搭配一块圆镜点缀;与橱柜、地板彼此相呼应,简简单单的,视觉效果温馨不冷淡。
镜子点缀让空间更灵动。卫生间
卫生间淋浴房与浴柜分左右排列,脏粉色墙砖有着特有的温馨感,把金色、黑色衬托得柔和细腻又不失优雅精致。
马桶是墙排的,上方搭配一排镜柜;增加收纳的同时,又避免了卫生死角的形成,镜子有反射作用,因此卫生间也感觉不到紧凑。客厅
台北虽然不会和我国其它地区一样一年四季温差很明显,但是冬天10以下的温度也是常有的事,因此屋主的衣服也不少;客厅顶天立地的衣柜虽然占用了一定空间,但是为不到8㎡的卧室减轻了不少收纳负担。
整个客餐厅大白墙配原木色为基调,搭配宜家风的极简家具,整体装修虽然不豪华,对于小户型来说却倍感舒适。
推荐阅读
- 屋主|56㎡小户型老房改造,小而美的设计!
- 床头柜|95后姑娘的“穷装”卧室火了,环保又精致,软装的力量真强大
- 屋主家|人生第一套140平新房,没请设计师,效果很漂亮,女儿特别开心!
- 屋主|五居室轻奢风实景,内附装修清单
- 屋主家|135㎡舒适北欧风,多功能书架实用性逆天!
- 玄关柜|日本姑娘蜗居20㎡小家,半平米不敢浪费,一个人住也要干净整洁
- 顶楼|为了一个露台,老公坚持买顶楼!用20天进行大改造,原屋主后悔了
- 屋主|北漂小姑娘的30㎡新家,小如鼠窝,她却说:一个人住,真舒服
- 屋主|二手房能买,但是这几个中介不愿说的细节要注意,容易吃亏
- 屋主|辛苦半年完工,装出自己所喜欢的效果,电视墙特别满意,晒晒全屋!
