父母|农村建房设计效果图,简单大方,父母住在里面都乐呵呵
比起喧闹的农村,相信更多人喜欢空气清新的农村生活,在自己家宅基地上面建一栋小别墅,在弄个院子,养养花种种树,一家人生活在一起,不也是很好吗。今天给大家分享的这几款作为自建房使用的角度来看,并不是说他有多好多高大豪华,这几款关键是室内布局很赞,很合理,我们可以通过户型图来了解一下。
别墅图一:农村一层带小院房屋设计图
农村一层带小院房屋设计图,简单大方,背面设立了4扇窗户,保证室内采光的同时,还让得整个建筑变得通透性十分的强,站在室内不管任何角度,都是明朗的。一层四室,足够一家人居住使用。
别墅效果图展示
占地面积:13.01m*12m,161.16平方米左右;
建筑层高:一层;
建筑高度:6.2米(含屋顶);
设计功能:
一层户型:客厅、厨房、餐厅、卧室x4、杂物间、卫生间x2、洗衣间;
别墅户型图展示
别墅图二:农村二层别墅设计图纸
农村二层别墅设计图纸,客厅中空,带锅炉房,非常适合农村自建。
别墅效果图展示
占地面积:15.6m*15.0m,192平方米左右;
建筑层高:二层;
建筑高度:10.41米(含屋顶);
设计功能:
一层户型:客厅、餐厅、厨房、卫生间、主卧(带卫生间)、卧室、锅炉房;
二层户型:客厅上空、休闲厅、卧室(带卫生间)×2、卧室x2、公卫、阳台、露台;
别墅一层户型图展示
别墅二层户型图展示
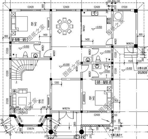
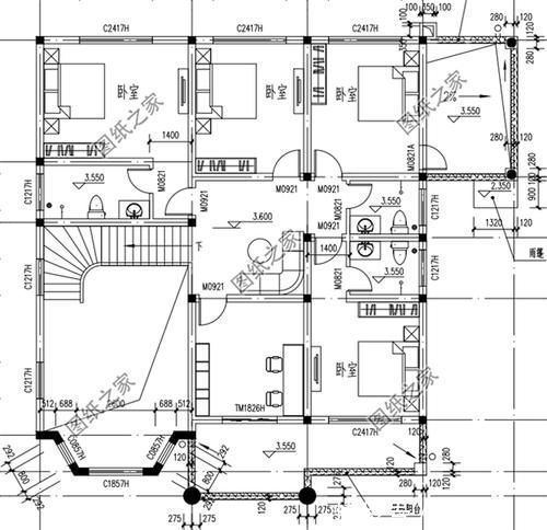
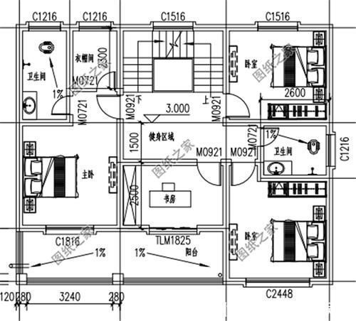
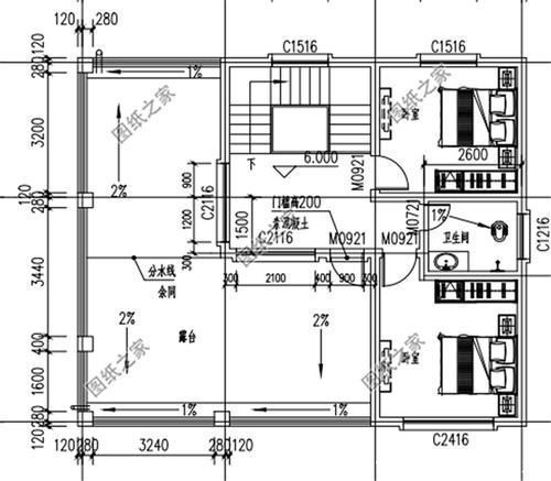
别墅图三:带车库现代三层楼房设计图
本户型为带车库现代三层楼房设计图,外观时尚、现代,整体给人的感觉很时尚,符合,户型布局非常合理,该有的功能都有,如果不需要一层的车库,可以改成卧室。
别墅效果图展示
占地面积:13.0m*12.6m,一层占地160平方米左右;
建筑层高:三层;
建筑高度:13.08米(含屋顶);
设计功能:
一 层:客厅、厨房、餐厅、卧室、棋牌室、卫生间、车库(不需要车库可以做成卧室);
二 层:客厅、卧室(带书房)、卧室x3、卫生间、阳台;
三 层:健身房、卧室x3、卫生间、大露台、阳台;
别墅一层户型图展示
别墅二层户型图展示
别墅三层户型图展示
【 父母|农村建房设计效果图,简单大方,父母住在里面都乐呵呵】以上就是农村建房设计效果图,内部的布局非常紧凑实用,农村建房的朋友可以参考。
推荐阅读
- 施工|面宽均为12米的两栋自建房,简单施工易,造价25万上下
- 建房子|面宽11米, 进深16.5米的农村三层别墅, 前后有花院还带车库, 完美!
- 别墅|参观亲戚上海的豪宅,别墅硬是住成农村房,真是糟蹋了好房子
- 购房置业|今年起,农村老家的老房子,统统按照“新规”处理,子女提前知晓
- 修建|精选10套三层户型图纸,占地面积均不足百平,尤其适合新农村修建
- 上海市|2022年农村人要“享福了”?实行按户补贴,跟村民们的房子有关
- 洗衣房|这三款农村四合院设计图让不少城里人羡慕,父母看了也欢喜
- 购房置业|农村建新房就选这套四层别墅,占地100多平,8间卧室人人都有地睡
- 别墅|土豪农村盖大别墅,人人羡慕,如今却成为全村人眼中的大笑料
- 青岛市|父母与子女共同购买房屋,房屋所有权归谁?
