别墅|朋友买的200平米别墅,一共才花40万,这简约风格太美了!

在装修客厅的时候,注意不要装修得太繁杂,尤其是不要放太多的东西,让客厅里被各种各样东西装满,显得太拥挤,也是让人觉得很不舒服。
大气。装饰的部位要少,但是在颜色和布局上
我们更喜欢的一个安静,祥和,看上去明朗宽敞舒适的家
装修中极简便是让空间看上去非常简洁
都市忙碌生活,早已经让我们烦腻了花天酒地,灯红酒绿
卧室里挂什么画最好?只要不辣眼睛都可以,人像、几何、植物,都是永不过时的元素,甚至你可以用自己拍摄的作品,稍加装饰就可以让整个空间更具个人特色,也让人更有归属感。
餐厅是大家共进餐食的场所,占地面积不一定要大,但它在装修设计时也是有很多讲究的。餐厅装修风格有哪些?一般都选择简约的装修,应以素雅、洁净材料做装饰,能营造出一种清新的氛围,还能增加温馨的气氛。
孩子的成长很快,所以儿童房的设置不要太固定,而是要灵活,可以随着他的年龄进行改变。在儿童房的设计上一定要采用环保的材料,墙面我们可以做一些修饰,开发他的大脑。
强调室内空间形态和物件的单一性、抽象性
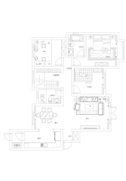
【 别墅|朋友买的200平米别墅,一共才花40万,这简约风格太美了!】以下就是本套天津津南新城别墅小区200平米别墅房子的户型图。
推荐阅读
- 建房子|面宽11米, 进深16.5米的农村三层别墅, 前后有花院还带车库, 完美!
- 小房间|参观140㎡大婚房,朋友都夸餐边柜有档次,我却更喜欢主卧的飘窗
- 别墅|参观亲戚上海的豪宅,别墅硬是住成农村房,真是糟蹋了好房子
- 购房置业|农村建新房就选这套四层别墅,占地100多平,8间卧室人人都有地睡
- 别墅|土豪农村盖大别墅,人人羡慕,如今却成为全村人眼中的大笑料
- 别墅|买不起别墅,买了一楼带30㎡院子的房子,入住两年多,后悔了吗?
- 贵州|利落挺括,12×11米现代二层别墅,4卧2厅好格局开启全新生活
- 北碚|重庆北碚高端别墅群,数量众多依山而建,满目疮痍好比世界末日
- 银行|买的房供不起了 后果有多可怕
- 朋友说|新居装修万万别这样安装大门,住久了都觉得坑,装错了赶紧返工
