本案屋主是一对夫妻,初步沟通主要是跟女屋主对接的,跟设计师聊得很是投机,屋主比较喜欢干净素净的感觉,生活中有点轻微洁癖,所以对生活和居住空间有着极致的追求。根据屋主需求和生活习惯,我们将风格定位为极简风,考虑到空间的实用性,我们采用大量储物柜,保证空间的干净利落,本案空间主要以白色+原木为主,以此保证空间的视觉效果和舒适感。

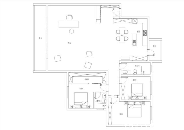
玄关
玄关空间采用鞋柜+格栅的设计,可以避免公共区域处一览无遗的状态,无形之中增加空间的趣味性,且保护屋主隐私。
格栅因为镂空设计,在发挥隔绝功能之外,也利于自然光线穿透至入户区,保有玄关明亮感。空间利用墙体打造大量收纳柜,原木色系温馨舒适,保证入户空间的干净整洁性,地面采用地砖,与客厅空间的原木地板拼接设计,方便清洁的同时,还有利于空间上的功能划分。客厅

客厅空间较大,推拉门将阳台与客厅空间相隔而开,还能保证空间的通透性,黑色包边框给空间一定的存在感。
空间整体无主灯设计,采用线性灯带和射灯相结合,搭配白色简约天花板,简洁大方,地面统一采用原木地板拼接设计,与白色天花板形成一个视觉对比。
由于本案常住人口是两人,空间没有选择常规的沙发和茶几,两个单人沙发放置于此,满足日常的休息之用,墙面选择白色乳胶漆通刷,没有装饰品的设计,秉承干净整洁。

屋主比较喜欢投影仪,所以我们摒弃电视的设计,乳胶漆刷出一面大白墙,满足屋主投影仪追剧的需求,还在此空间放置一写字桌,保证屋主有一个安静独立的办公空间,利用玄关鞋柜打造出开放格,可以摆放常用书籍。极简风的空间展现出干净透亮,而且视觉感空间的面积增加,下班后一起在家追剧,是一天中最美的时光。餐厅

餐厨区与客厅采用一体化设计,空间以原木为主,原木护墙板+原木收纳柜,再加上原木吊顶,让空间温润舒适。厨房

厨房空间的橱柜采用白色,与空间形成整体性,一字型厨房动线合理,外侧采用超长岛台设计,还能达到一定的空间功能性划分,岛台还可以作为备餐区或者西餐区使用,白色岩板耐看还易清洁,大型电器采用嵌入式设计,预留出空间保证统一性。主卧
推荐阅读
- 玄关|房价会不会暴跌?现在该不该尽早抛房?看完就明白了
- 购房置业|东户还是西户?今年想买房的究竟该怎么选?看完这3点你就懂了
- 安置房|别再说农村房子土了!那是你没见我家,看完请你重新评价!原谅你
- 浙江省|为什么1.8米的床越来越少人购买,看完这篇,相信大家就知道了
- |合成树脂瓦用什么材料搭建架子?看完你就懂了
- 江门|为什么日本人家里久住不乱?看完这些“家务细节”,嘴不服心服气
- |简装就学他家,全屋刷大白,电视墙不造型,反而装出高级感!
- 房价|今年房价到底是上涨还是下跌呢?看完你就明白了
- 南京楼市|爆改138m2小三房:空间利用+极简生活,他家可以照着学!
- 海景房|海景房已经沦为韭菜盘!别再傻傻的买了,看完这4点你就懂了
