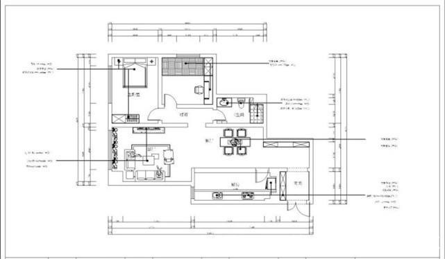
装修伊始看了很多案例,最后发现适合这套121平米的二居室的方案并不多,于是大胆出手,选择现代风,还好,最后的装修效果让人很满意。从入户门进入,左侧就是厨房,面积较大卧室设有飘窗,餐厅在进门左前方,客厅位于房门左前方,再接下来是次卧,内设1个小窗,采光较好,视野开阔,书房更改为客卧室可供单人休息卫生间位于主卧旁,面积一般,深夜去卫生间比较方便,主卧位于户型的最里面,私密较性好,安静,视野开阔,采光较好,再接下来是客厅,客厅面积较大,客厅与餐厅相近,给用餐带来了方便。
客厅的设计比较简单,沙发背景墙放了3幅装饰画,使空间更为大气,吊顶的设计做了石膏线圈边,沙发的选择为布艺的,茶几选择为方形。
卧室的设计很舒适,家具的选择较为简单,卧室的设计舒适大气,家具的颜色选择大部分为黑白木色。
餐厅的设计也很复杂没有做过多的装饰只是放了照片墙和酒柜,餐桌的选择为4人餐桌.
书房改为儿童房设计为榻榻米节约空间,提升空间利用率。整体设计很舒适,适合居住。
户型:两室一厅该户型南北通透,光线较为充足,空间比较合理,可以为住户创造舒适的住房体验。
推荐阅读
- 落落大方|175平中式风四居室,被中式之美包裹的客厅落落大方
- 二居室|100平简约二居室,高端大气上档次
- 复式|190平复式现代简约风设计,用花格对空间分割让空间更时尚感
- 书香气|96平现代风三居室,将梦想中的美妙和现实生活的烟火结合
- 餐厅|90平现代风二居室,餐厅温馨,女儿房设计童趣十足
- 四居室|140平新中式四居室,让“家”变得自由自在
- 净收入|2021年美国家居零售平台Wayfair营收达122亿欧元
- 宅基地|占地90平能建大房子?答案是不能,但能建好房子,气质不输大别墅
- 梳妆台|90平简约风二居室,床尾做收纳设计角落顺便改造成为梳妆台
- 四居室|147平中式四居室,你看卧室牡丹花仙鹤背景墙俗气吗
