这是一套面积为96平米的三居室,屋主两口子都是大学教师,他们对家有着明确的畅想和追求。如梦想中的美妙和现实生活的烟火气息
客厅布置打破常规,不以电视为中心,更加注重对话交流。大面积书柜满足主人藏书所客厅布置打破常规,不以电视为中心,更加注重对话交流。大面积书柜满足主人藏书所需,也让整个空间充满了书香气。中古藤编单椅与焦糖色皮沙发,其复古的质感,有岁月流淌的痕迹。需,也让整个空间充满了书香气。中古藤编单椅与焦糖色皮沙发,其复古的质感,有岁月流淌的痕迹。
飘窗下面可以安放最近阅读的一些书籍,倚靠在软绵绵的飘窗垫上看一本好书,品一杯好茶。
主卧背景选择了暖暖的姜黄色,搭配暖色调窗帘及柔和质朴舒适的床上用品,感觉超级温馨舒适。
次卧为男孩房,里面的功能除了睡眠还增加了学习区域,储物空间。
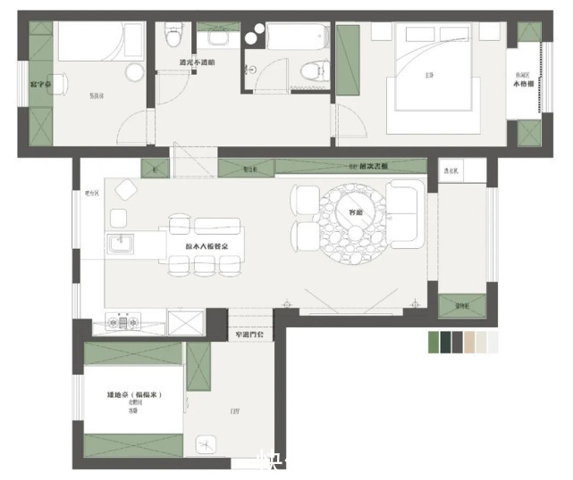
卫生间干湿分区,独立马桶间,地面选用地毯砖,提升舒适感。洗浴区选用仿木地板砖上墙,使得整个空间有一定的延伸感,躺在浴缸里与一天的疲劳说声再见。
开放式的餐厨空间,大量木色定制柜,卧室门也隐藏其中,动静分区明显,整体给人的感觉是非常自然和谐的。
餐桌、岛台、吧台形成L型连接,自由、舒适,随手可得是餐厅的关键词。
改造后的玄关区域,明亮通透。设计师用复古感十足的海棠玻璃作为推拉门形成门厅与榻榻米房的隔断,有所遮挡,又不影响采光。
96㎡美家
推荐阅读
- 餐厅|90平现代风二居室,餐厅温馨,女儿房设计童趣十足
- 四居室|140平新中式四居室,让“家”变得自由自在
- 净收入|2021年美国家居零售平台Wayfair营收达122亿欧元
- 宅基地|占地90平能建大房子?答案是不能,但能建好房子,气质不输大别墅
- 梳妆台|90平简约风二居室,床尾做收纳设计角落顺便改造成为梳妆台
- 四居室|147平中式四居室,你看卧室牡丹花仙鹤背景墙俗气吗
- 三居室|119平简约+原木三居室,以最纯粹的搭配,传递家的温度
- 建筑|现在农村住房有必要带书房吗?对于这两类家庭来说真的很重要
- 小复式|78平小复式,客厅挑空设计,楼梯不装扶手,一看业主就很有品位!
- 优标|顶固净纯竹香板获得“育儿环境优标产品”证书
