每位业主对生活的需求不用,对家庭空间大小的需求也不用。本案例房间面积是92平米,考虑到业主的真实需求,将房子装修成北欧风格的二居室,整个房子装修完总花费11万,一起来看看装修效果吧。
从入户门进入是玄关,面对的是洗手间,左手边是厨房,右手边是客厅加餐厅。从客厅往前走,左手边是儿童房,右手边是主卧室。

整间房子的色彩十分明亮,采光也很好,采用北欧的风格。用软装搭配出效果和舒适度。融合北欧的装饰成分,配饰以及装饰画,都加入了北欧元素。浅色墙面和装饰画相称,为空间定下了和谐的格调,搭配浅色沙发及抱枕,感觉温暖自然。

主卧以灰色为主色调,从床头背景到软装配饰,无一不尽显业主的品味。

卫生间除了洁具装修需要注意外,一些小的装饰品也能让空间看起来更加精致。这款北欧风格卫生间它选择了白色的橱柜,经典的白色橱柜配上墙面上蓝色的花纹以及金色边框的画册,空间的颜色呼应做得很好,还提高的卫生间的档次。

餐厅白色桌子搭配颜色跳跃的餐椅,使整个空间更加明快。

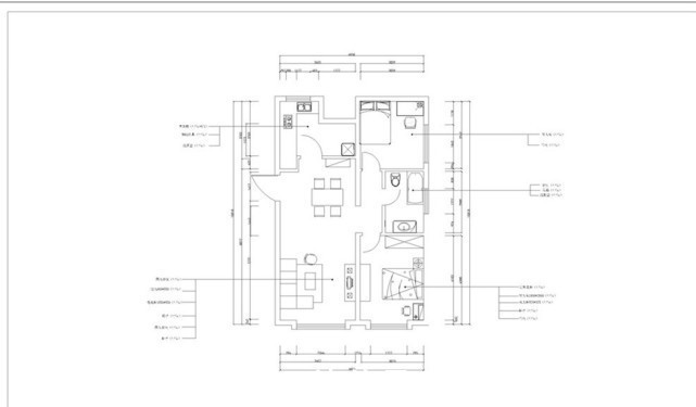
【 北欧|92平北欧风二居室,用纯粹的白调和温暖的木调达到宽敞明亮的感觉】户型:两室两厅整体房型呈长方形,整体采光不是很好,但空间还算方正不用拆砸很多。
推荐阅读
- 家居|北欧一女主晒郊区生活,屡次火出圈,网友:这简直就是世外桃源!
- 有情调感|60平北欧风装修设计,玄关走廊和餐厨之间还有吧台和小黑板
- 北欧风|邻居家的“穷装”北欧风,简简单单很舒适,细节品味很是耐人寻味
- 硅藻泥|102平北欧风三居室,选择深色布艺沙发只是为了耐脏
- 北欧风|117平现代北欧风三居室,简单明快,轻松愉快又舒适
- 背景墙|124平北欧三居室,以清新而富有生命力的色彩贯穿全屋
- 北欧|看北欧女主如何布置在中国的新家,一点不都将就,真是爱了!
- 文艺范|北欧风三居室的装修,白色文化石与灰蓝色的组合真好看!
- 设计|130平北欧风婚房设计,营造精致、纯净的居住空间
- 装修|122平北欧风二居室,一个开放式的大豪宅
