今天分享的是一套建筑面积117平米的现代北欧风三居室案例,房子在现代大方的硬装基础上,做了一些简洁硬朗的造型,再加上原木北欧风家具带来的温馨感,整个家给人一种简单明快、轻松惬意的感觉。
客厅是我们整个家中需要去重点做的地方,因为客厅是最为重要的场所,代表着我们整个家庭的整体印象。很多人都希望将客厅装修的更好一些,但是一不注意就会用力过猛,犯了一些不该有的错误!

客厅的电视背景墙是做了硬包造型,四周还加上了边框线条作为的点缀。整个客厅大部分以暖色调为主,结合北欧风的软装让人感觉惬意而又舒适。
卧室装修的要求较其他空间会更加严格,因为卧室是人们休息的地方,为了保证你有个好睡眠,卧室必须具备隔音的条件,而且卧室的美观度同样影响主人的心情,所以一个美观私密的卧室是非常重要的。

主卧室床头背景墙的设计和客厅沙发背景墙有些相似,就是把木饰面板放在了中间,在两侧的硬包造型边缘处加上了藏光,看起来更加时尚。
卫浴有必要干湿分区么?其实卫浴装修的时候最好还是考虑下干湿分离,长期的潮湿会对浴室柜等家具造成很大的损害,因此做好干湿分离十分必要。最简单的方法就是用浴帘,价格便宜安装也方便,但同时浴帘需要定期清理,否则容易滋生细菌。

主卫做了干湿分离的设计,把长条形的卫生间空间充分利用了起来,大面积的镜柜和马桶上方的隔板都给卫生间带来了足够的储物空间。
书房装修的时候要注意书房的布置,合宜的布置有利于人们聚精会神地研读。书房也并不是需要太大的空间,小空间一样可以很大气。书房的家具不需要太多,有书架和桌椅就可以了。还可以放置一点绿色植物缓解下疲惫的眼睛,点缀书房的氛围。

还有一个房间被改成了独立的书房,书房的一侧做了木质的书架,在书架上摆放各种装饰品和书籍,提升了书房的颜值和艺术感。
儿童房怎么装修?儿童房可以选择柠檬黄的主色调,塑造一个活泼的氛围,让孩子在这个空间中快乐健康成长,有添加的家庭还可以设置简单的榻榻米,保证充足的收纳功能。

儿童房的床头背景墙是铺贴了卡通款式的壁纸,单人床大小的床让床两侧摆放书桌、小桌椅更加方便,迷你款式的家具也给儿童房增添了一些可爱感。

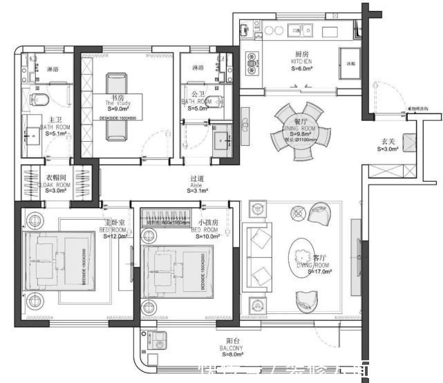
【 北欧风|117平现代北欧风三居室,简单明快,轻松愉快又舒适】户型图
推荐阅读
- 背景墙|124平北欧三居室,以清新而富有生命力的色彩贯穿全屋
- 现房|480亿!北京打响第一枪 楼市迎来三大变化
- 上海市|纪实:湖北小伙在鹤岗3万买房,最后还赔了8000块,后悔当时买房
- 北三县|环京北三县大厂房价2月份最新出炉!
- 北京市|京房回忆043,崇外六号地,十万老北京的梦幻梦碎之地
- 宋青山|未来发展潜力巨大!宁波江北这个地块又将新增一个住宅项目!
- 商品房|为南北通透而建的连廊房,如今看来属实鸡肋,这种房子哪不好呢?
- 香港|30万一平?女子花230万在北京胡同买8平米平房,网友:有钱我也买
- 九龙|河北乐亭:冀东果菜批发市场12日菜价 西红柿茄子下滑 地产菜花质优
- 淮北|2022年3月11日淮北新房备案45套
