保证私密性就餐区使用合理
再次研究人流的动线形式及安全出口问题

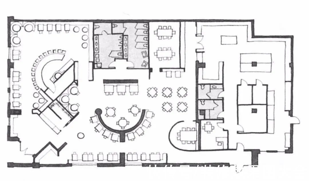
平面方案深化图
深化平面:为第一次阶段性汇报认真绘制图纸
仔细地设置家具所在的空间。
确保空间的疏密程度适中
下一步:检查设计图是否符合项目要求
并确保所有内容都已被考虑在内
检查平面是否符合建筑规范
并根据规范要求修改布局和设计要素
检查厨房的出入通行是否有改进的空间

【办公空间】
概念气泡图到平面方案构思过程
方案概念气泡图
界定交通动线端点的区域
(会议室、转角休息区、转角非正式洽谈区)
定位空间布局(采用气泡形式)
尝试所有空间之间的契合程度

块状平面方案图
在块状或者交通动线平面图中
更精确地绘制各个区域
确保封闭空间和开放空间的面积
都能适合家具的使用和摆放

平面方案草图
设计更多的细节
开始推敲如何改变特定区域
来营造更加自然的环境感受
检查空间布局是否符合最佳视野的需求

平面方案深化图
画出所需要的家具和可移动的空间
赋予它们最合适的尺寸
花些时间深化核心区域的设计
例如接待区和临时的“迎宾”角落
为提出隐私保护要求的长期员工提供适合的空间
在保持开放性的同时能拥有一定程度的封闭感
下一步:检查设计图是否符合项目要求
并确保所有内容都已被考虑在内
检杳平面是否符合建筑规范
并根据要求修改布局和设计要素

近年来这种方案概念气泡图
越来越受到室内设计师的广泛使用
能够方便自己推敲方案,考虑的更加系统全面
另一方面,最终表现出来的气泡图富有艺术感
推荐阅读
- 房价|房价为什么难降?
- |我国为什么竭力“稳房价”,而不是学美、日两国主动刺破泡沫?
- 王健林|为什么说买房一定要贷款,全款买房有什么缺点贷款有什么好处
- 房地产行业|为什么不建议买一楼房子?内行人说出了5点,你能接受吗?
- |为什么购买房子后还要交钱?
- 优点|为什么开发商的庭院流行做成下沉式?住过才知道,优点真是不少
- 二手房|为什么不要买二手房?究其根本是这3点,想购房的提前看
- 楼市|钢结构别墅为什么能逐渐成为建房首选?
- 学区房|为什么学历不断贬值,但学区房却越来越昂贵
- 杭州|“销售都换了好几个,它还没开盘!”为什么迟迟不卖?
